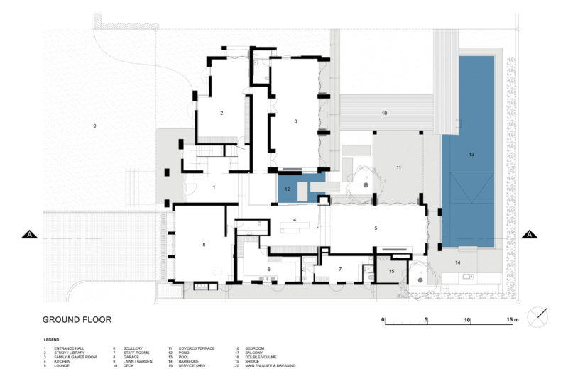
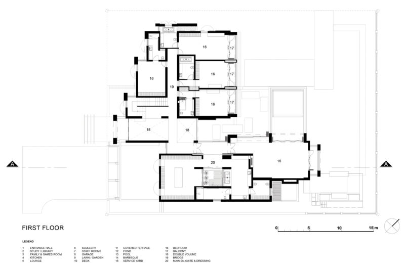
The Cape town-based studio SAOTA in collaboration with interior design studio AntoniAssociates made a really good job in designing the Silverhust Residence in Constancia, South Africa. If you ask us, what we really love about this house is the fact that nature is so close that it almost knocks at the door to come in. This futuristic yet classic home invites you to experience the unique sensation of living constantly spoiled. Only fine elements and exquisite finished details have contributed to a project that is worth only words of praise. Just to get an opinion, American cedarwas used for the doors and pergolas and Ipe for the pool decking.The connection between the décor and the architecture was made through the clean, simple and fine lines which are found in every inch you explore.
Photos by Wieland Gleich, SAOTA


















More Similar Articles Like This
Pure Perfection: Discover the Top White Paint Colors for a Flawless Décor
Vibrant Concrete Floor Paint Colors to Elevate Your Space
Benjamin Moore Exterior Paint: Vibrant Shades for a Striking Home
70 Shades of Green: Benjamin Moore’s Vibrant Paint Colors
Seamlessly Apartment by the Beach by ZZ Architects
Behr’s Brilliant Blues: 70 Shades of Stunning Paint Colors
Santa Barbara Style Home in Paradise Valley, Phoenix
A Superb Italianate Mansion in California, USA