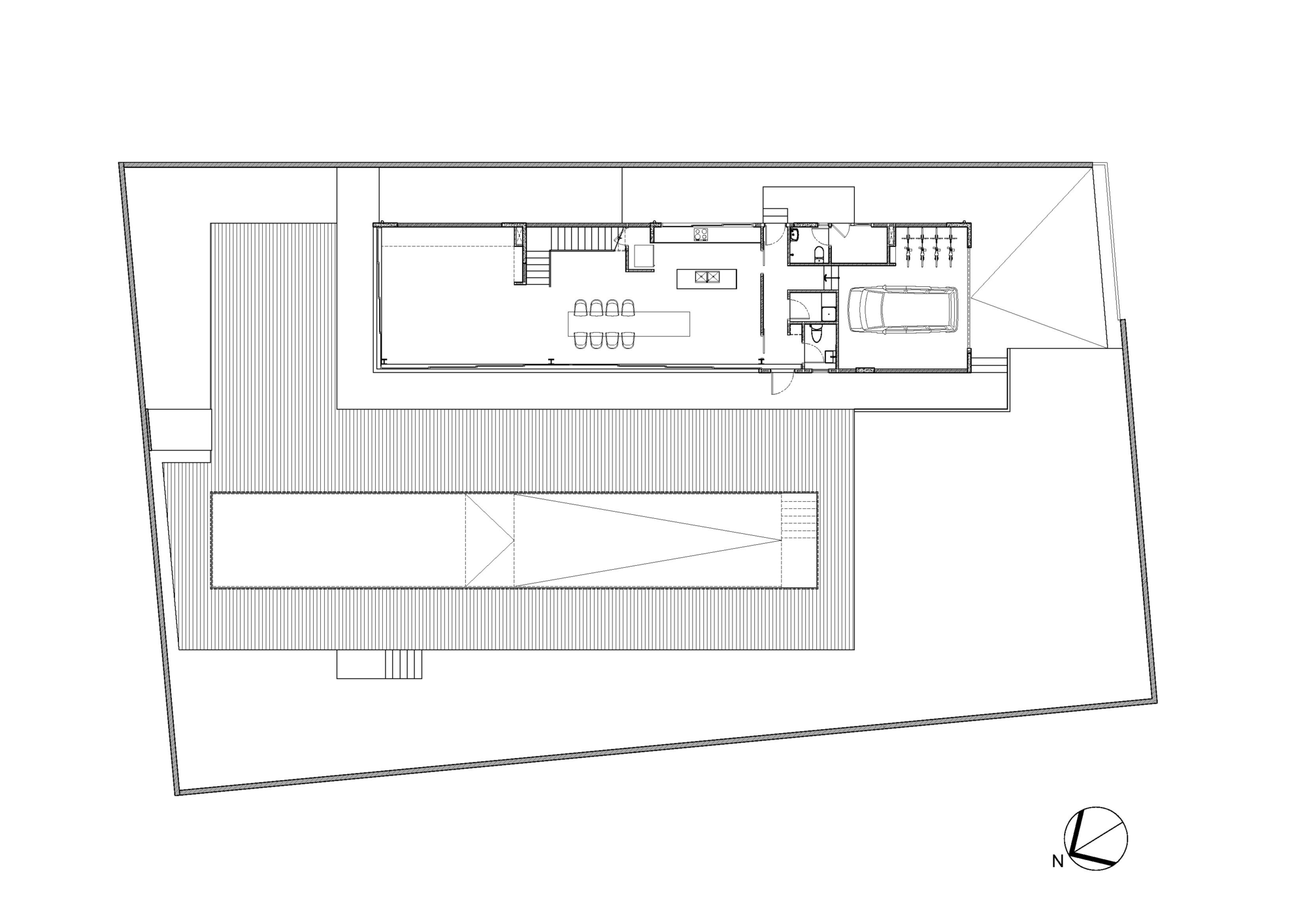
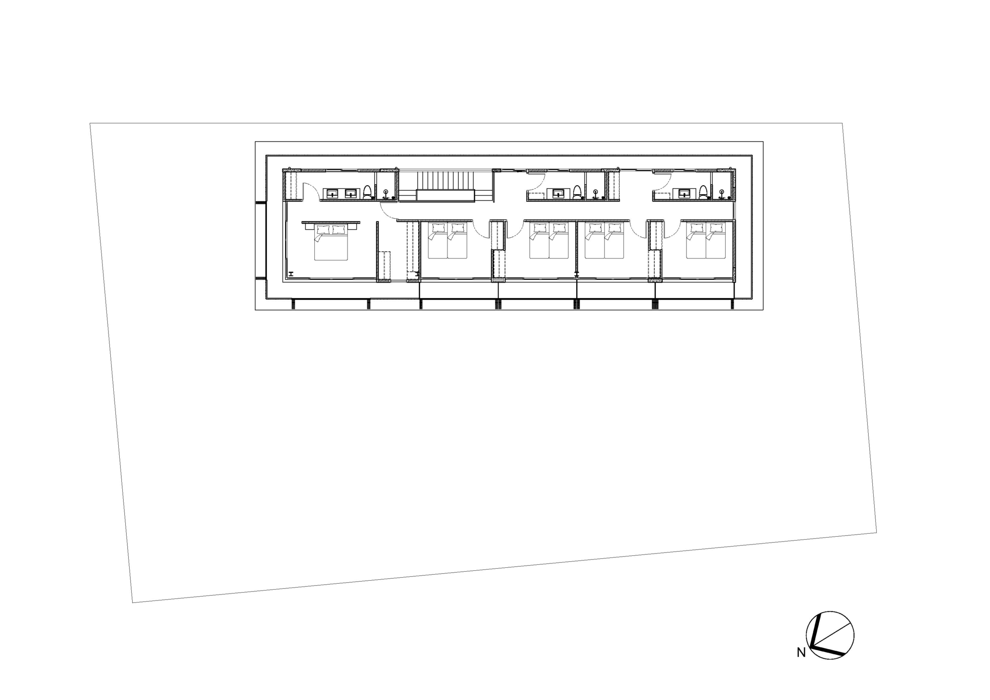
Built for a Swiss family that wanted to live somewhere near the east coast of the Gulf of Thailand, the Bang Saray House was sketched out by Architectkidd and boasts 3,229 square feet of space. Spreading on two levels, the abode has social spaces such as a kitchen, a dining area and a living room on the ground floor, while the upper level is reserved for five lavish bedrooms.
As with many other projects signed by Architectkidd, this particular home was constructed using raw materials such as cast concrete and steel. The wooden features such as the upper level facade were created using reclaimed hard wood timber, which contrasts nicely with the concrete and adds a natural, welcoming touch. Furthermore, as the architects decided to use post-tensioned concrete slabs during the building process, the sizeable glass panels implemented on the lower floor can be opened completely, thus fading the boundaries between the indoors and outdoors.
This way, the dining area, living room and kitchen are connected to an outdoor swimming pool and a garden.
From the architect:
Located near the east coast of the Gulf of Thailand, this house is formed by the tropical conditions of South East Asia as well as the values of its owners, a Swiss family living in the region.
The house follows a simple arrangement of spaces, with five bedrooms laid out lengthwise on the upper floor. The lower floor consists of the kitchen, dining and a large living area facing the outdoor pool and garden.
The house is constructed using post-tensioned concrete slabs, which are more commonly found in larger-scale commercial buildings in Thailand. The use of post-tensioning for this house allows for uninterrupted spaces, particularly on the lower level, where large glass panels can be opened to connect the interior spaces with the outdoor areas.
The house continues Architectkidd’s interest in using raw and minimally processed materials. The thin horizontal slabs contrast with the cast concrete shear walls and steel columns. All the wooden elements of the house were designed using reclaimed hard wood timber, including the facade which provides shading and natural airflow for the spaces on the upper floor.
Design Team: Luke Yeung, Manassak Senachak, Tammarat Rodpul, Beatrice Pacharapan
Area: 300.0 sqm
Photographs: Luke Yeung
Interior Consultant: Aey Jongsiriwanich
Project Consultant: Peter Hedrich
General Contractor: Chatree Ruento
Structure Engineer: Chaiyot Pinitjitrsamut














More Similar Articles Like This
Tips for Choosing the Right Blue Paint Color for Your Dining Room
6 Garden and Lawn Tips to Get Ready for Spring
The Superb Villa Verai on Phuket Island, Thailand
70 Shades of Green: Benjamin Moore’s Vibrant Paint Colors
The Sophisticated Casa Villa Flamingo in Spain
The Superb Maradiva Villas Resort & Spa in Mauritius
These Top Tips Will Help You to Turn Your Garden into the Ultimate Glamping Site!
Exquisite Crossacres Mansion In Surrey, England