Built in 2013 in a neighborhood called Magnolia in Seattle, USA, the Aurea residence is a modern and spacious three-story home. It was built for a young family on a 5,000 square foot lot, and it was designed by Chris Pardo Design: Elemental Architecture with privacy and comfort in mind. The house offers 3,300 square feet of living space, and its design is based on four volumes that surround a central Japanese rock garden.
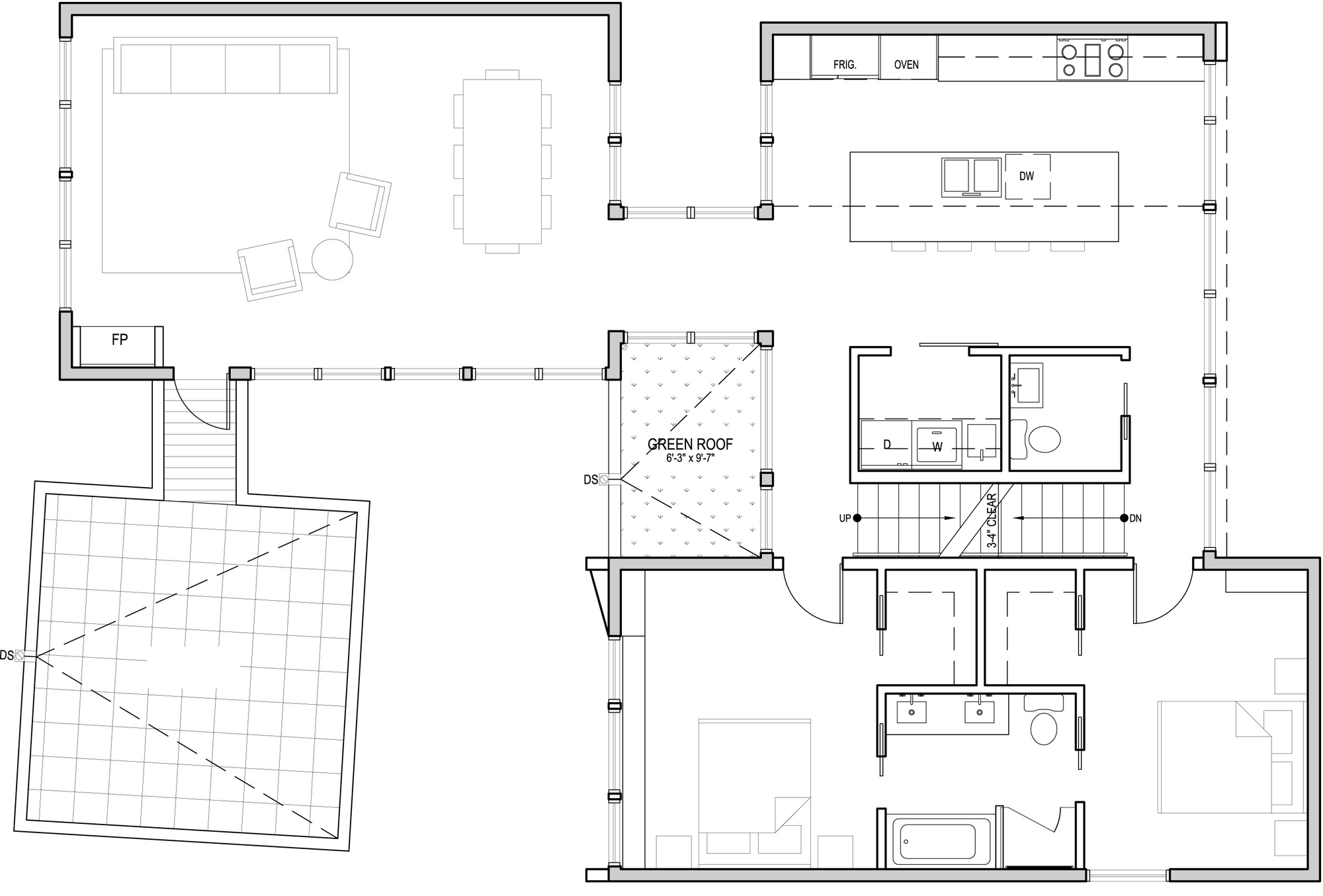
The lower floor accommodates the master suite as well as a separate bathroom area with a recessed tub. This level also includes accommodations for the mother in law as well as a garage for two cars. Upstairs, on the second floor, we find the great room, the living room and a pair of bedrooms. The final floor features a play room for the children, a covered roof deck as well as a secondary master suite that benefits from great views.
From the architect:
The Aurea Residence is located in the Magnolia neighborhood of Seattle. Designed for a young family on a 5000 sqft infill lot, the home is oriented to maintain privacy, maximize views and daylighting. The massing consists of four forms that surround a Japanese rock garden, which creates a private center courtyard and floods the home with southern light.
A Bernice Abbott inspired black and white translucent photograph provides recognition and definition to the front entry door while providing privacy. The lower level consists of a master suite with separate bathroom volume and recessed tub, a mother in law unit and a two car garage. The second floor features two bedrooms, and the great room with an open roof deck and green roof off of the living room.
The third floor has a second mater suite, a kids play room, and a covered roof deck with views over Puget Sound.
General Contractor: Delen Construction Services Inc
Artwork: Cassandria Blackmore
Engineering: LFD Structural Engineering
Area: 3,300 sq ft
Year: 2013
Photographs: Dale Tu














More Similar Articles Like This
Beautiful Apartment in Stockholm for $1 Million
Extraordinary Constance Halaveli Maldives Resort
Spectacular Rooftop Apartment by Innocad
5 Ways to Turn Your Yard Into a Fancy Space
Vibrant Wood Tones: Explore a Spectrum of Spray Paint Colors!
How Seattle Lawn Care Service Deals With Overgrown Lawns
The Sophisticated Casa Villa Flamingo in Spain
These Top Tips Will Help You to Turn Your Garden into the Ultimate Glamping Site!