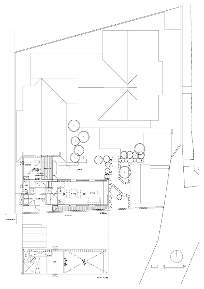
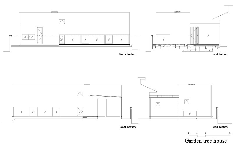
The Garden Tree House located in Kagawa, Japan is a modern residence created by Hironaka Ogawa Associates in 2012 for a client that owned a property including a pair of trees with sentimental value and wanted to keep them without being an obstacle for the existing house. The architects managed to respect his wish and re-purposed them as a focal point in the new structure.
After they were smoked and dried from the water content, the trees were beautifully placed where they used to stand and turned into main structural columns in the center of the living room, dining room and kitchen.
Photos by Daici Ano



















More Similar Articles Like This
Unique Click Clack Hotel In Bogota, Colombia
70 Shades of Green: Benjamin Moore’s Vibrant Paint Colors
Exceptional Coronado Bay Front Estate in California
Astonishing El Tovar by the Sea
Outstanding Bodrum Houses in Yalikavak, Turkey
Superb Luxury Penthouse in Portomaso, Malta
Green Gables Home In Fairfield, Connecticut, United States
These Top Tips Will Help You to Turn Your Garden into the Ultimate Glamping Site!