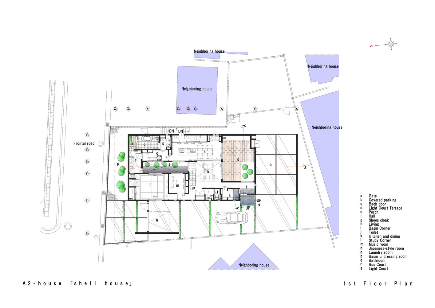
Comfortable, spacious and welcoming, the A2 House is located in Fukuoka Prefecture, Japan, and it was designed by Masahiko Sato. The clients wanted to live in a modern and luxurious home, but they also had another requirement that’s not necessarily a priority in similar projects: safety. Indeed, the owners wanted to feel completely safe in their own home, which is why the architect completely closed off the outer wall on the northern side of the site that faces the road.
Furthermore, the home was built back from the road in order to allow space for planting trees. The overslide door that permits access onto the property can only be opened using a remote control, and it further improves privacy and safety. The parents and children can enjoy quality time together on a court terrace, which is connected to the dining room and the living room at the south of the lot. There’s also a smaller light court on the opposite side of the large one.
From the architect:
A2-house which has another name [shell house] was built in Fukuoka city. Site is located on the area where there are crowed by residences and shops. North of site is contact with a busy industrial road.
To satisfy the needs of owner [A house that family can live in safely], this design‘s main concept is protecting family from various neighboring environment of the site.
To protect the privacy and mitigate traffic noise, I set no opening on outer wall of north side faced to the road. In addition, I pushed out a white wall diagonally on a road to emphasize the beautiful wooden wall and leave people a deep impression.
House is retreated from the road in 2600 mm to plant trees in order to harmonize architecture and environment. When a car entries the house, it is needed to use remote-control to open overslide door. By this way, it enhances ability of crime prevention and owner can entry house safely from entrance.
There is a big light court terrace contacted with living room and dining room on the south of house. Family and children can play safely outside in the light court. It makes the space a whole feeling by setting a window of large openness is set between light court and living room & dining room. So family can enjoy themselves there.
In addition, I designed another smaller light court opposite to it and all rooms inside the house have a good quality of brightness and ventilation. I used a window that can protect privacy from outside on smaller light court so they can feel the seasons, changes of daytime, rain, wind etc. by themselves.
Opposite to the exclusive feeling of road side, you may enjoy open and bright space when you enter inner of A2-house [shell house]. I hope owners spend a pleasant time in the house by feeling the benefits of nature and changes of seasons.
Architects: Masahiko Sato
Location: Fukuoka, Fukuoka Prefecture, Japan
Area: 254.0 sqm
Project Year: 2013
Photographs: Toshihisa Ishii
Builder: Murozono Construction Co.,Ltd.
Client: Mr.Aiba














More Similar Articles Like This
A Superb Italianate Mansion in California, USA
Beautiful Apartment in Stockholm for $1 Million
Heavenly Lily Beach Resort & Spa In Huvahendhoo, Maldives
70 Shades of Green: Benjamin Moore’s Vibrant Paint Colors
Astonishing El Tovar by the Sea
5 Ways to Turn Your Yard Into a Fancy Space
Spectacular Luxury House in Sarasota, Florida by DSDG Inc. Architects
Seamlessly Apartment by the Beach by ZZ Architects