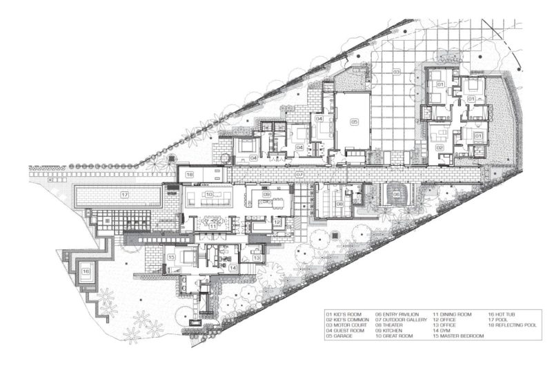
The Kona Residence is an architectural masterpiece placed between cooled lava flows and gently modeled by Santa Monica-based studio Belzberg Architects in collaboration with interior design studio MKL Studio. It is the winner of Freestanding House Award from Interior Design magazine 2010 edition.
This 8,000 sq. ft. exquisite construction offers gorgeous views of the eastern volcanic mountain ranges and also of the western ocean horizons.
It’s very important for a home to be eco-friendly so, in order to accomplish this status, the Kona house has two separate arrays of roof mounted photovoltaic panels to maintain the environmental sensitivityanduses darker lava stone to help heat the pool water with the help of solar radiation.
Almost every detail of the house is created upon the Hawaiian tradition and as an example to that, you may notice the entry pavilion which reflects the traditional gift specific to the arrival ceremony.
We must say that we love the Hawaiian hospitality and now, we’ve started to like their homes as well.





















More Similar Articles Like This
Benjamin Moore Exterior Paint: Vibrant Shades for a Striking Home
The JKC1 House in Bukit Timah, Singapore
Secluded Naladhu Island in Maldives
Contemporary BO House In Envigado, Antioquia, Colombia
These Top Tips Will Help You to Turn Your Garden into the Ultimate Glamping Site!
70 Shades of Green: Benjamin Moore’s Vibrant Paint Colors
Wonderful Yachting Club Villas at Elounda Beach by Davide Macullo Architects
Santa Barbara Style Home in Paradise Valley, Phoenix