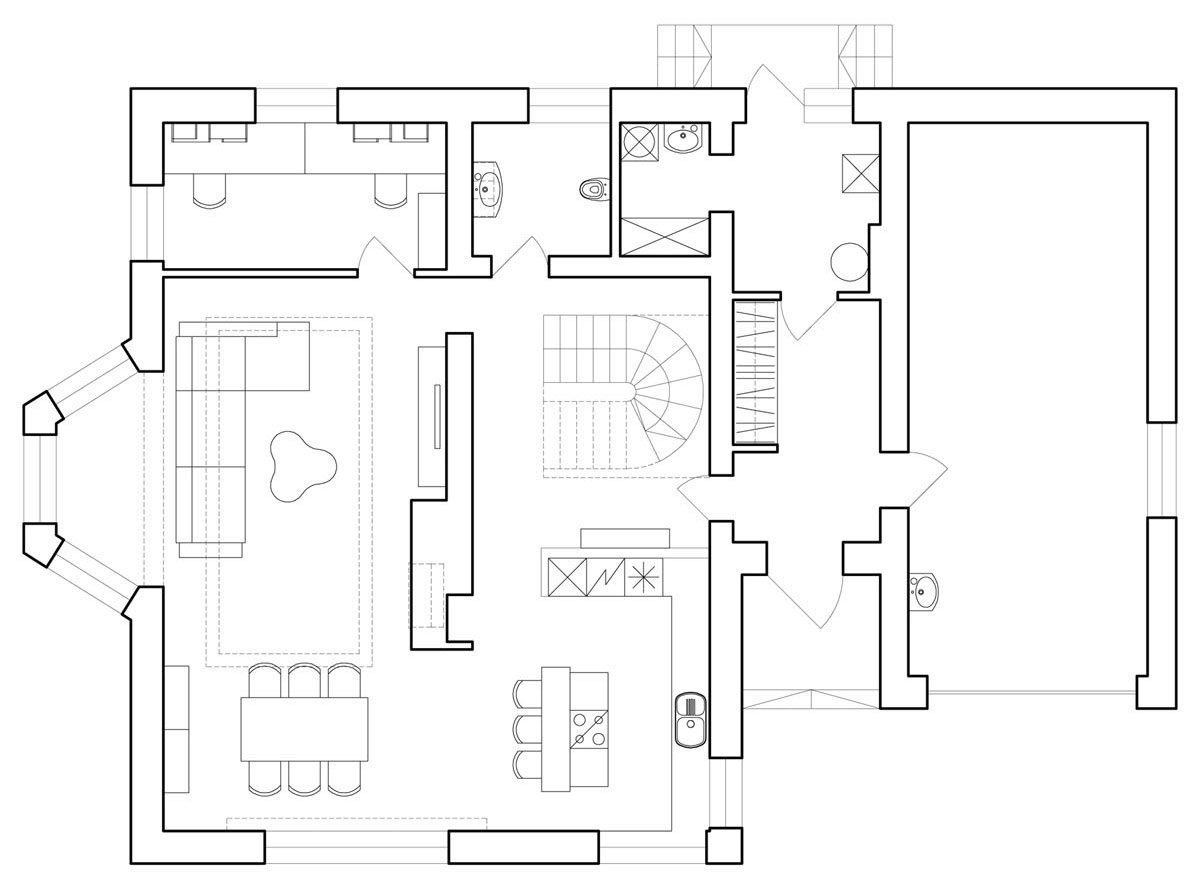
The minimalistic House 02 is the result of a successful renovation process carried out by designers Ramunas Manikas and Valdas Kontrimas. The residence features 2,690 square feet of space and is located within a beautiful Lithuanian city named Klaipeda. The main modifications were focused on the first level, which incorporates the dining area, the kitchen and the living room. These three spaces were merged into a single open space that boasts a round wall with a fireplace at its center.
The second floor is now reachable via a newly installed staircase, which leads the way towards the bathrooms and bedrooms. Aside from the main living areas, the apartment also includes a small workspace with a white desk, a personal computer and a modern lamp. Even though white is the predominant color within the house, the designers also implemented wood features and gray elements on the walls for a touch of contrast.
From the architect:
Interior is designed in the reconstructed residential house in Klaipeda region. The first floor of the house with the living-room, the dinning-room and the kitchen was altered.
The rooms were united into one common area with a round wall with the fireplace installed in the middle of it. New stairs to the second floor were as well designed.
There was a screen not reaching the ceiling installed in the kitchen zone for the daylight to reach the stairs. Bedrooms and bathrooms were arranged on the second floor.
Minimal style and white colour is dominant in the interior of the house. It is combined with natural wood fittings and grey shades of walls and furniture.














More Similar Articles Like This
Marvelous Anantara Dhigu Resort
Pure Perfection: Discover the Top White Paint Colors for a Flawless Décor
5 Ways to Turn Your Yard Into a Fancy Space
Best paint colors for the living room
Lovelli Residence: Mediterranean-Style Dwelling in Bali
Gayton Road Residence by Paxton Locher Studio
Wonderful Yachting Club Villas at Elounda Beach by Davide Macullo Architects
Vibrant Concrete Floor Paint Colors to Elevate Your Space