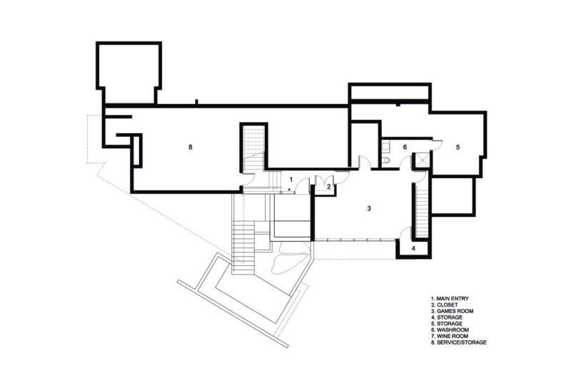
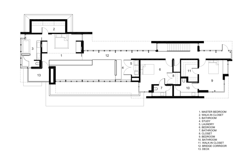
The House 4249 designed by DGBK Architects is located in West Vancouver, Canada. This project nicely captures the spirit of openness and the connection with nature.
There are no boundaries between the built and the natural, the house being one with the natural surroundings. It features clean lines and a simple design, simplicity being the characteristic that amazes.
The spatial volume of this residence is organized around the positive and negative forms, providing the home both its interior focus and its outer link with the nature.
Photos by Wade Comer


















More Similar Articles Like This
Marvelous Anantara Dhigu Resort
6 Garden and Lawn Tips to Get Ready for Spring
Astonishing El Tovar by the Sea
5 Ways to Turn Your Yard Into a Fancy Space
Vibrant Concrete Floor Paint Colors to Elevate Your Space
Shadowed Depths: Vintage-inspired Paint Colors for Dark Basements
Plain Geometric Residence Designed by Lidija Dragisic
Stunning Sustainable Home in Costa Rica by SPG Architects