Even though it looks relatively simple from the outside, Villa Sandmeier is actually a very interesting project that has its fair share of complexity. It was completed in 2011 in Veyrier, Switzerland, and it was designed by Lacroix Chessex Architects in collaboration with Ana Sa. It boasts just 1,614 square feet of living space and was built on a picturesque location that features plenty of vegetation.
The house is composed of three concrete volumes stacked together in various ways. The basement comprises the service areas as well as a few extra rooms, while the second floor includes a trio of bedrooms. The upper floor flaunts an inverted roof that is used to channel rainwater into a small collection pond. Inside, high quality wooden elements are used for the wall paneling and floors, while generously sized windows allow natural light to flow throughout without much obstruction.
From the achitect:
Built for a traditional client the contemporary architecture tries to exceed a Swiss minimalism and abstraction.
The project is presented as a set of three concrete tables stacked in different ways.
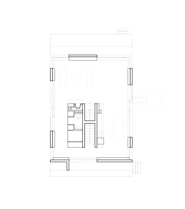
The first floor of the home emerges slightly from the cellar. Technical rooms and extra rooms are placed in the basement. The raised ground establishes a special relationship with the garden, expressing a sort of monumentalism in this small building.
The second floor contains the three bedrooms and the upper floor sees its folded tray to create an inverted roof that ends with an expressive gargoyle; rainwater flows to a small collection pond.
The structure is an outdoor concrete structure that is insulated from the inside.
The scheme of the two 6-feet floors base is simple deformation shifts for maximum generosity to interior spaces, creating a more complex structure than it seems.
Architects: Lacroix Chessex Architects
Location: Veyrier, Switzerland
Collaboration: Ana Sa
Area: 150.0 sqm
Project Year: 2011
Photographs: Courtesy of Lacroix Chessex Architects













More Similar Articles Like This
Lovelli Residence: Mediterranean-Style Dwelling in Bali
Stunning Sustainable Home in Costa Rica by SPG Architects
Beautiful Apartment in Stockholm for $1 Million
Opulent Mandarin Oriental Hotel in Paris
Extraordinary Constance Halaveli Maldives Resort
Superb Luxury Penthouse in Portomaso, Malta
Marvelous Anantara Dhigu Resort
Heavenly Lily Beach Resort & Spa In Huvahendhoo, Maldives