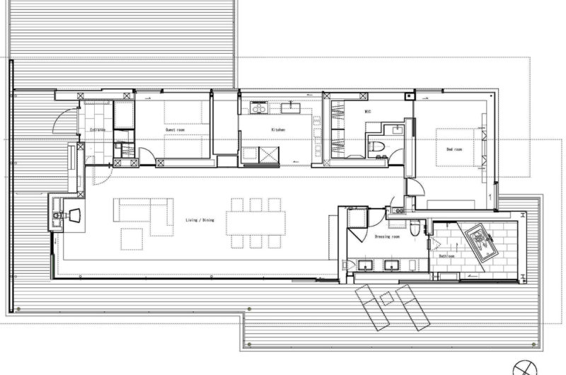
Every house has its own story and this contemporary home speaks through its incredible location. A huge tree stretching is designed to protect the home like a guardian, offering in the same time a breathtaking view and also plenty of fresh air. Designed by Kidosaki Architects Studio this exquisite home was built on a site in AsamayamaTsukudeiwanami, Shinshiro, Aichi Prefecture, Japan. Placed on multiple pillars, the interior is very little accessorized maintaining a simple, fine and effective aspect. If Mother Nature amazes all the time by its simplicity and mystery, this spectacular home is closely related to it.
Photo by Junji Kojima
































More Similar Articles Like This
The Superb Maradiva Villas Resort & Spa in Mauritius
6 Garden and Lawn Tips to Get Ready for Spring
The Superb Villa Verai on Phuket Island, Thailand
These Top Tips Will Help You to Turn Your Garden into the Ultimate Glamping Site!
The JKC1 House in Bukit Timah, Singapore
Amazing Four Seasons Resort Bora Bora
Lawn Care Tips, The Basics For Each Season
Loving Luxury at Mardan Palace Resort, Turkey