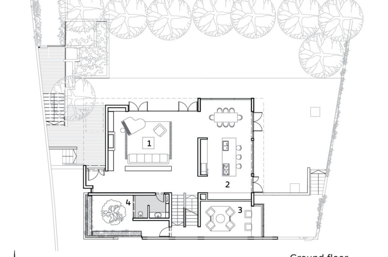
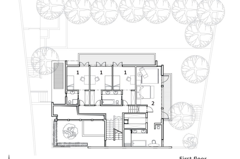
K House is a lovely two-story residence in Ramat HaSharon city near Tel Aviv, Israel. It was completed in 2009 by studio Paz Gersh Architects, for a family with three kids. The architects changed “the existing orientation into a house that creates a complex relationship with the green belt surrounding the house”.
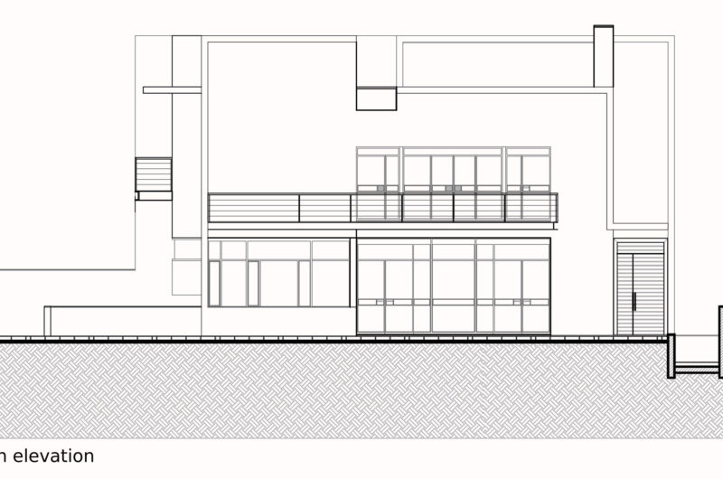
The home has two main facades: a North facing and a South facing one. The first is open and transparent, and it faces the green outdoors. This gives it a sense of space and openness, while also ensuring enough privacy in the large public area. The second façade is actually a double façade that filters the light as it passes through and goes towards the center of the home.
With a combination of local architectural influences and modern “International style”, the K House is a perfect family home: spacious, luminous and inviting.

























More Similar Articles Like This
Best paint colors for the living room
Exquisite Crossacres Mansion In Surrey, England
Stunning Banyan Tree Ungasan Bali in Indonesia
Stunning Sustainable Home in Costa Rica by SPG Architects
The Sophisticated Casa Villa Flamingo in Spain
Secluded Naladhu Island in Maldives
Exceptional Coronado Bay Front Estate in California
Lawn Care Tips, The Basics For Each Season