The expert architects over at Studiomk27 did a fantastic job in designing the Tetris House, which can be found in Sao Paulo, Brazil. Built in 2012, this unique residence was named after the famous Tetris game that managed to maintain its popularity to this day. This is a spacious and luxurious abode that features two floors as well as a plethora of amenities, modern facilities and high quality finishes.
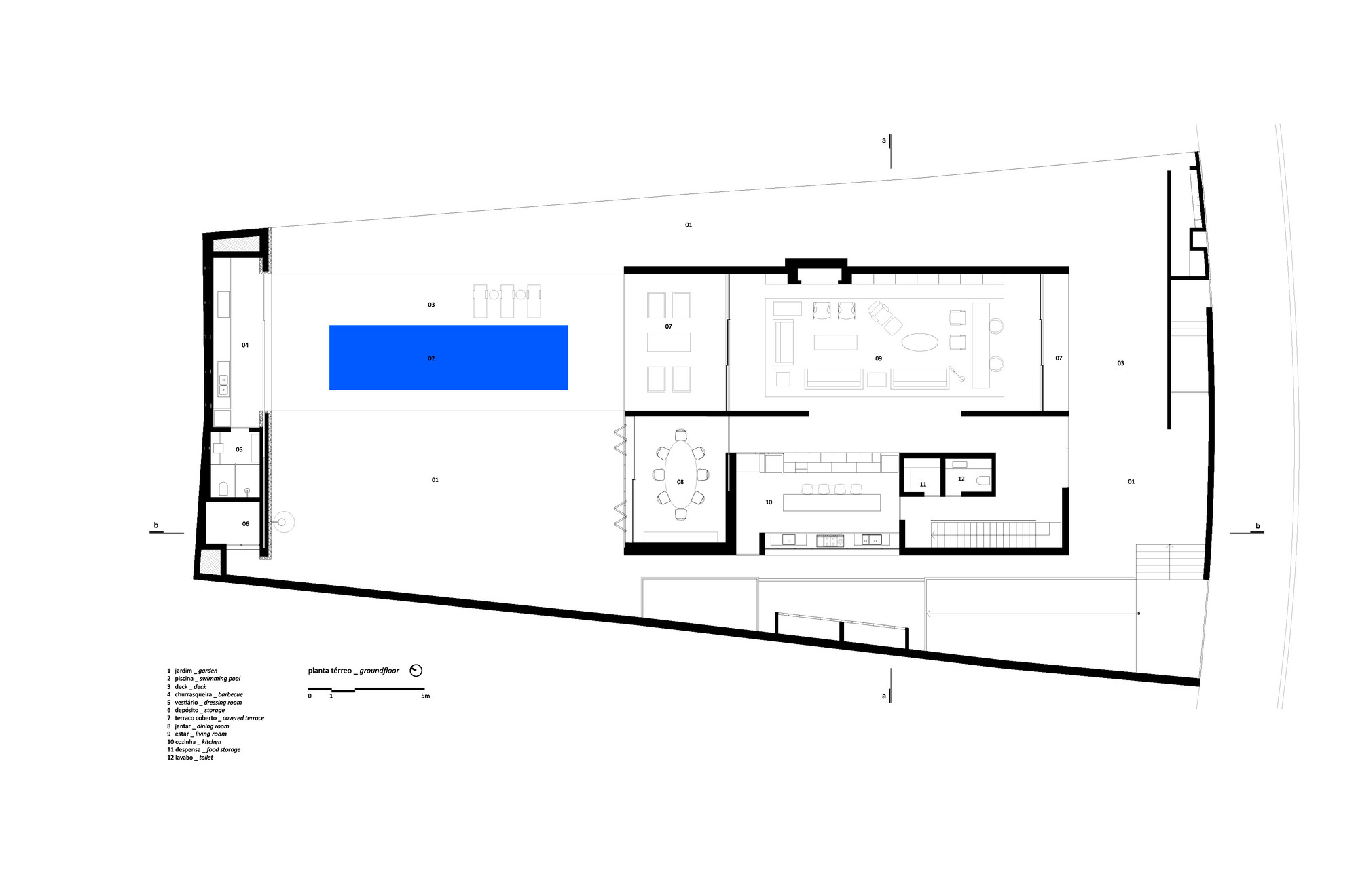
Plenty of wooden elements adorn its façade, ceiling and floors for a touch of warmth and coziness, while a generous amount of glass elements ensure an adequate flow of natural light during the day. The living room is generously sized and includes comfortable furnishings as well as ample shelving for books and miscellaneous objects. It is connected to a rear patio at the back of the house, which features a swimming pool with its own illumination.
Access between the two levels of the Tetris House is achieved via a “floating” staircase, which also leads the way to the roof.
From the architect:
A wooden volume in line with the eastern façade – with a little more 2.85m high and 19m long – rests within a ceiling height of 5.15m and 11.75 in the front. Configuring a permeable space between the entrance and the back of the lot, the living room is the emptiness that results from this organization of the plan on this lot. The space is delimited – together with the eastern façade – by a wooden shelf that contains the library and a fireplace. This is the architectural design of Tetris House, located in São Paulo.
The wooden Box on the lot shelters on the inside, the washroom, the stairs and the dining room, which opens entirely to the ample garden in the back, like an esplanade (terrace), looking from the inside in. (de dentro para dentro) The ceiling of this living room, a slatted wooden lining – creates a cozy, intimate sensation, contrasting with the spatial sensation of larger monumentality of the lot. The four bedrooms, including a master suite looking out to the garden in the back, are on the floor upstairs.
The seals – such as the wooden slats that function as a filter applied to movable panels– were designed to create greater comfort for the inner spaces. The sun’s heat, when the panels are closed, is retained by this type of brise soleil, while the wind continues to chill the inside. The shape of the lot, long and straight, has traced a longitudinal implantation of the house and the living room can have a cross-ventilation to the gardens.
The wooden lining of the ground floor is prolonged to the outside and becomes the very façade. The stone on the floor of the living room goes out to the terrace and the same material on the inner walls continues out to the façade. In this way, there is continuity not only of the circulation between the inside and out, but also of the materials, dissolving spatial limits.
Architects: Studio mk27
Location: São Paulo – State of São Paulo, Brazil
Architect in Charge: Marcio Kogan
Co-Architect : Carolina Castroviejo
Project Team : Fernando Falcon, Maria Cristina Motta, Mariana Ruzante
Area: 620.0 sqm
Project Year: 2012
Photographs: Fernando Guerra | FG+SG
Interiors: Diana Radomysler
Studio Team : Eduardo Glycerio, Gabriel Kogan, Lair Reis, Mariana Simas, Oswaldo Pessano, Renata Furlanetto, Samanta Cafardo, Suzana Glogowski
Landscape Designer : Renata Tilli
Contractor : All’e Engenharia, Eng. Luis Esteves Caldas Neto
Structure Engineer : Pinto Rodrigues Engenharia Estrutural
Site Area: 817 sqm























More Similar Articles Like This
70 Shades of Green: Benjamin Moore’s Vibrant Paint Colors
The Superb Maradiva Villas Resort & Spa in Mauritius
5 Ways to Turn Your Yard Into a Fancy Space
Plain Geometric Residence Designed by Lidija Dragisic
Outstanding Bodrum Houses in Yalikavak, Turkey
Spectacular Rooftop Apartment by Innocad
Behr’s Brilliant Blues: 70 Shades of Stunning Paint Colors
Stunning Sustainable Home in Costa Rica by SPG Architects