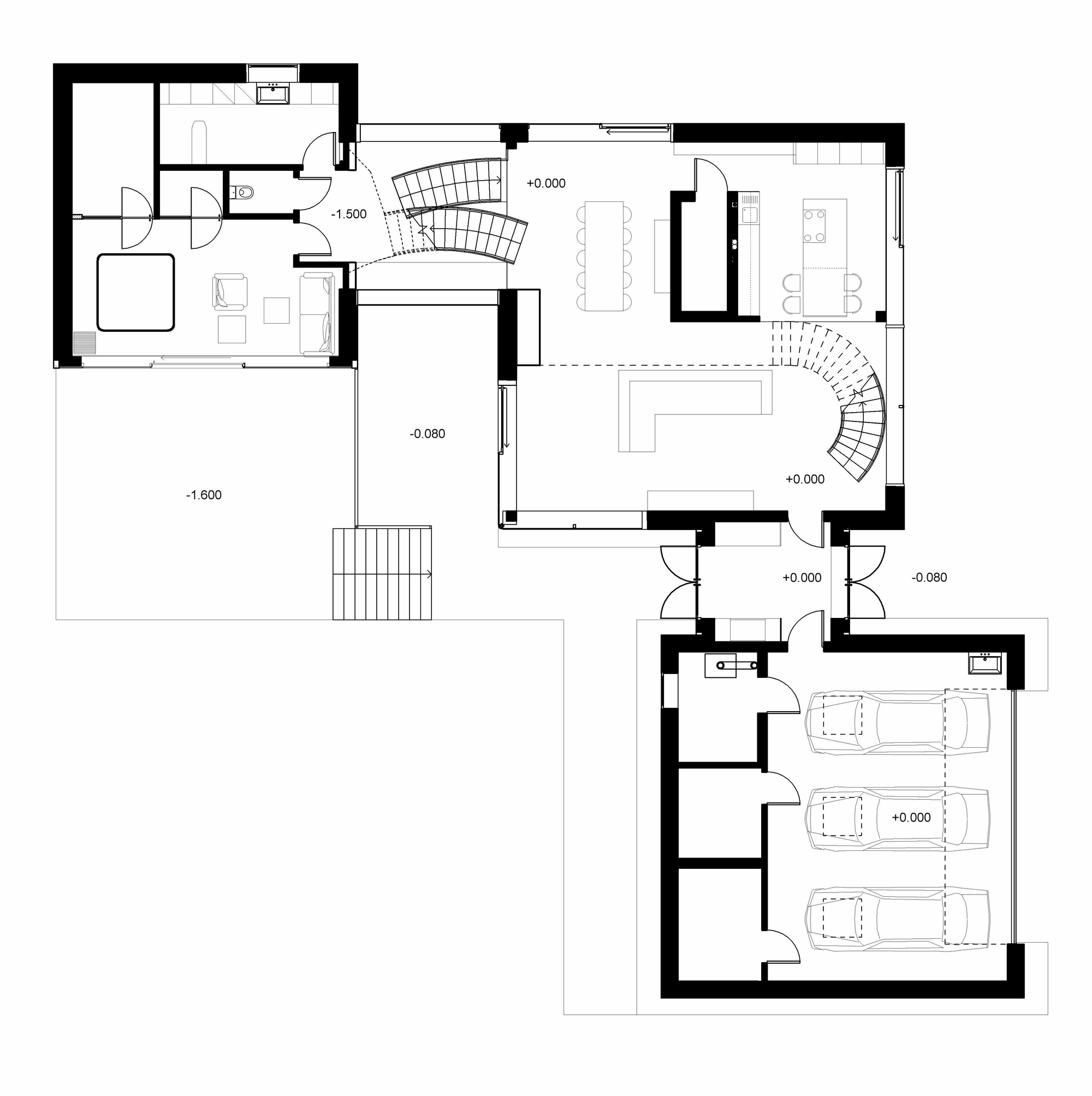
This fine example of contemporary architecture is called the Parallelepiped Rectangle House, and it was designed by the experts of a company called Devyni Architektai. Built in 2013 within a perfect location in Vilnius, Lithuania, the residence flaunts 3,875 square feet of space and was built for a couple of young owners.
The architects in charge of the construction process are named Arunas Skrolis and Jurgita Liubartaite, and they were both tasked with coming up with a functional, beautiful and rectangular design as per the owner’s request. They came up with a solution by envisioning a design based on glass and concrete frames, while the exterior adornments involve polished stone.
As far as the interior is concerned, the residence flaunts extremely comfortable living arrangements, high quality furnishings and a plethora of high-end amenities that are able to sustain carefree and relaxed lifestyle. Wood burning fireplaces, large dining tables, comfortable sofas and large flat screen TVs are just some of the highlights of the Parallelepiped Rectangle House. You can admire this superb home in its entire splendor by viewing the picture gallery just below.
Photos by Arunas Skrolis




















More Similar Articles Like This
A Superb Italianate Mansion in California, USA
Spectacular Luxury House in Sarasota, Florida by DSDG Inc. Architects
Plain Geometric Residence Designed by Lidija Dragisic
Lovelli Residence: Mediterranean-Style Dwelling in Bali
The JKC1 House in Bukit Timah, Singapore
Outstanding Bodrum Houses in Yalikavak, Turkey
Boracay Resort & Spa in the Fascinating Philippines
Santa Barbara Style Home in Paradise Valley, Phoenix