House Ca’s Bouer was built in 2014 by Jordi Queralt and La Boqueria, and it can be found in Blanes, Girona, Spain. This is a spacious, comfortable and well-lit abode that impresses with an eye-catching contrast between white and brown, between artificial and natural. Its cabinets, walls and some of its furniture pieces are painted white and give off a sense of pure elegance, while the floors, ceiling, staircase and outdoor deck flaunt a natural wooden look.

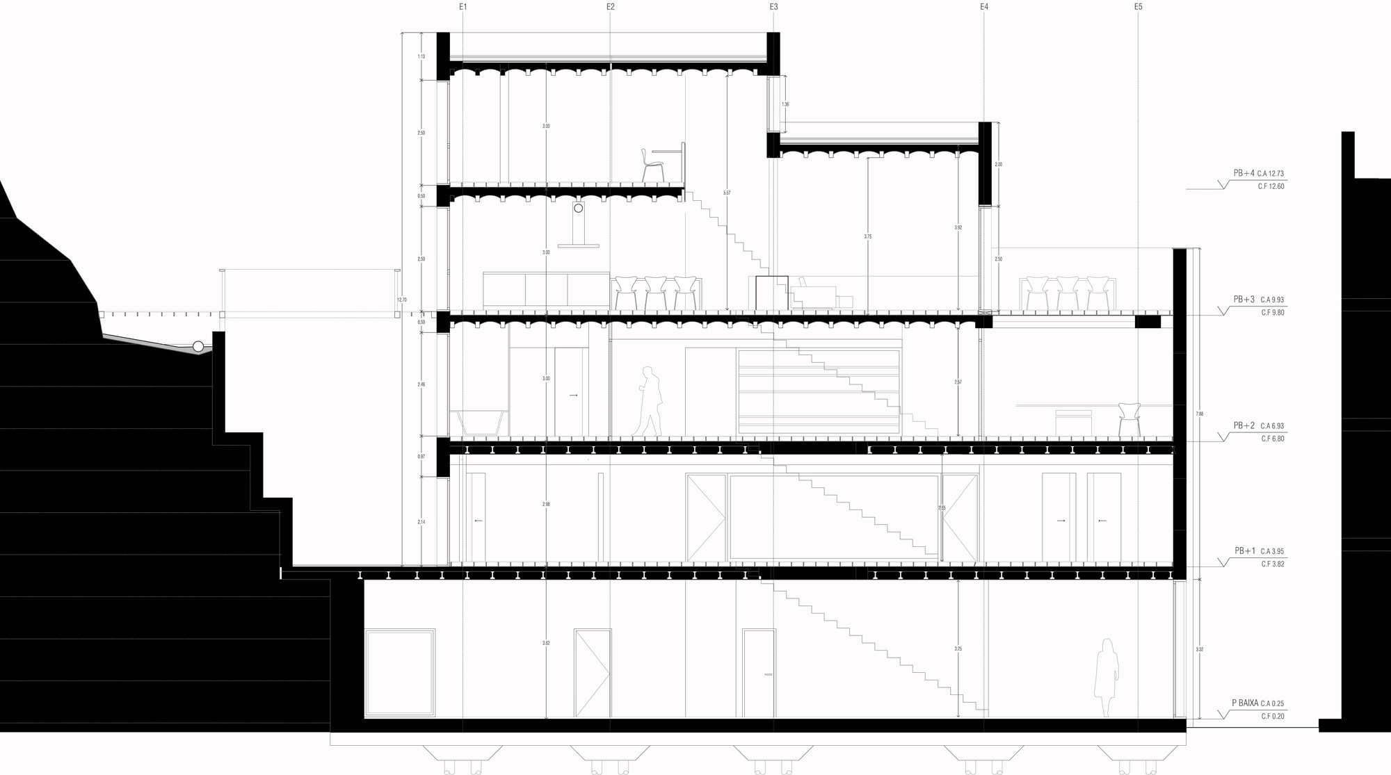
The ground floor includes the main entryway as well as a garage, while its upper levels comprise the private and social living arrangements. On the second level, we find the bedrooms and some other private rooms.
The common areas were placed at the third and fourth floors and benefit from the best views. The social spaces are also connected to the outdoors and boast large windows that allow natural light to flow seamlessly throughout the house.
From the architect:
The time and the use is the main demand of the project: the building has to absorb a great variety of functions. The first floor, level in which you can access through the public staircase, it is conceive to develop many activities, from a leisure space to a second housing or an office space.
In the ground floor you can find the main access and the garage, with a little working and storage space. In the upper levels we set the rest of the housing. Looking for intimacy the bedrooms and more private rooms are located in the second floor; the common spaces and day spaces are in the third and fourth floor looking for daylight and relating them with the outside.
On account of the original building was an edification of ground floor plus one, we use the existing slabs and we grew up to three levels above, then to proceed to an ampliation-reform. To grow up in height we built a steel structure piercing the existing slabs in order not to damage the existing structure and materializing the new slabs with ceramic filler blocks and concrete pre-manufactured beams.
Due to the dimensions of the area (6.45m x 18m); to organize the general distribution we have grouped the service spaces and the vertical flow of the common wall , leaving free space in the facade. The bedrooms arrangement is defined by the inner rhythm of the ceiling (beams and ceramic filler blocks). The common space is defined by three slabs, one single open space looking for a visual relationship in height with the outside and the different areas of the housing. All coming together through the chimney, main element centered in the space.
The nature of the interiors wants to evoke the comfort of the local architecture looking for the warmth of the ceramic ceilings and floors (horizontal planes) contrasting with the white walls. In the exterior, the Corten steel allows us to create filters and external wall coverings, controlling privacy and access to the interior.
Architects: Jordi Queralt , La Boqueria
Location: Blanes, Girona, Spain
Architect in Charge: Oriol Antolin, Ricard Grau, Alfons Tornero, Jordi Queralt
Architect Technical: José Berrocal
Project Year: 2014
Photographs: Eugeni Pons, Núria Ginès
Collaborators: Pau Munar, Marti Ardanaz
Structural Engineer: Ricardo Martinez
Interiorista: Pau de las Heras
Constructor: Camps Esqueu












More Similar Articles Like This
Plain Geometric Residence Designed by Lidija Dragisic
Gayton Road Residence by Paxton Locher Studio
Exceptional Coronado Bay Front Estate in California
Amazing Four Seasons Resort Bora Bora
Shadowed Depths: Vintage-inspired Paint Colors for Dark Basements
Astonishing El Tovar by the Sea
Loving Luxury at Mardan Palace Resort, Turkey
The Sophisticated Casa Villa Flamingo in Spain