Graux & Baeyens Architecten completed House K in 2012. It’s an innovative project located in Buggenhout, Belgium, in a tranquil, wooded area.
The house perfectly adapted the challenging form of the plot, providing architectural value. One of its main assets is the patio which abounds in light and gives life to this contemporary home.
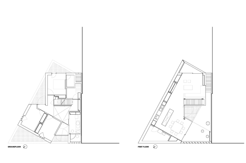
The ground floor accommodates the entrance, the sleeping area, the bathroom and the storeroom.
The construction provides enough light and views but it also offers privacy. The materials used such as light brown / beige brick,black aluminum joinery and white aluminum, emphasize the modern aspect of the property.
Photos by: Luc Roymans, Dennis Desmet















More Similar Articles Like This
Wonderful Yachting Club Villas at Elounda Beach by Davide Macullo Architects
The Sophisticated Casa Villa Flamingo in Spain
Dreamy Oceanfront Chateau In West Vancouver, Canada
Beach House CN – A Superb Contemporary Home in Peru
Vibrant Concrete Floor Paint Colors to Elevate Your Space
Amazing Four Seasons Resort Bora Bora
Lawn Care Tips, The Basics For Each Season
70 Shades of Green: Benjamin Moore’s Vibrant Paint Colors