Sketched out by Bijl Architecture and completed in 2013, the 2,690-square foot Naremburn House is located in Sydney, Australia. It was built for a family whose members requested robust and welcoming living spaces as well as different rooms that have little in common with each other. The home’s design was created as a reaction to the site’s topography, and it includes Dutch gable and catslide roofs.
The material palette is comprised of timber, masonry, concrete and zinc for the exterior as well as framed walls, timber framed fenestrations and polished concrete for the interior. The volumetric characteristics of the roof allowed the architects to create open plan living spaces. The study, bedrooms, service areas and bathrooms are linked to a central stair void. A double height wall located beside this stair void includes a Corian sculptural installation named “De-Form Wall.” This feature was designed in collaboration with AR-MA.
From the architect:
Our clients came to us with a short list of demands: light-filled spaces, no boring square rooms, no two rooms the same, robust, and a place to ‘live long’. The Naremburn House, located in Sydney, Australia, responds to this brief while negotiating site and planning parameters to create a family home with an emphasis on thoughtful spatial planning and a robust materiality – in underpinned by an ‘intentional irregularity’.
The design manipulates the site topography with subtle level changes while re-interpreting traditional roof forms, such as the Dutch gable and catslide roof, to present a compact streetscape frontage. At the rear, the pool and patio interlock with the internal living spaces via expansive glazing and openings. The material selections – externally, zinc, timber, masonry, concrete; and internally, polished concrete, solid surfaces, framed walls and timber framed fenestration – were selected for durability and capacity to weather and wear.
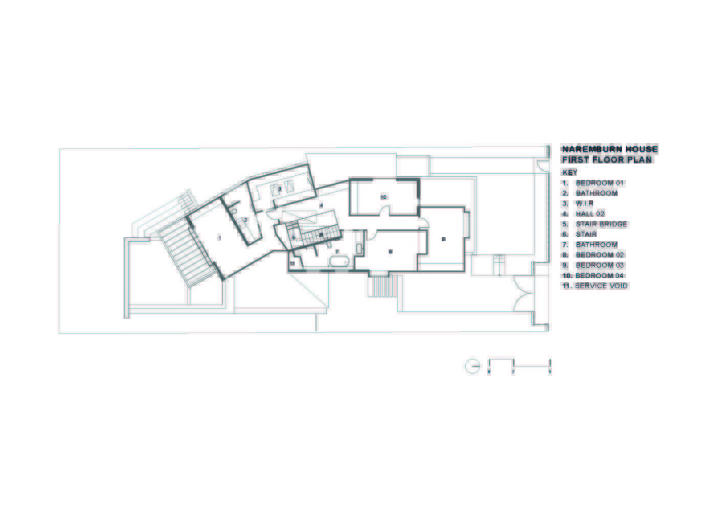
The volumetric opportunities offered by the roof form are exploited to provide a useful and capacious floor plan layout, accommodating open plan living spaces, bedrooms and study, bathrooms and service spaces, garaging and the internal circulation, which culminates in the central sculptural stair wall and void.
A double height wall beside the central stair void is the site of a unique, integrated Corian sculptural wall installation dubbed the “De-Form Wall”. Bijl Architecture co-designed the wall with AR-MA in an intensive exploration of parametric drawing and scripting, investigating pattern and form by deploying an innovative approach to digital fabrication processes and CNC machining.
Architects: Bijl Architecture
Location: Sydney NSW, Australia
Area: 250.0 sqm
Project Year: 2013
Photographs: Katherine Lu
Builder: Stuart Wilson Constructions
Landscape Consultant: Melissa Wilson Landscape Architects
Structural Consultant: Engineering & Design Group Pty Ltd
De-Form Wall Design: AR-MA and Bijl Architecture
De-Form Wall Fabrication: FCI
Stormwater Engineering: YSCO
















More Similar Articles Like This
70 Shades of Green: Benjamin Moore’s Vibrant Paint Colors
Green Gables Home In Fairfield, Connecticut, United States
Vibrant Concrete Floor Paint Colors to Elevate Your Space
Lawn Care Tips, The Basics For Each Season
Plain Geometric Residence Designed by Lidija Dragisic
Stunning Banyan Tree Ungasan Bali in Indonesia
Vibrant Wood Tones: Explore a Spectrum of Spray Paint Colors!
Shadowed Depths: Vintage-inspired Paint Colors for Dark Basements