Atelier Riri completed the Lumber Shaped-Box House in 2013. It is located in Jakarta, Indonesia and is stretched along 296.0 sqm. Because the house had to adapt with the site, it features strong geometrical elements and modern concept.
Wood is the main material used in building the home while they reduced the cement in order to design a straightforward feeling to the construction.
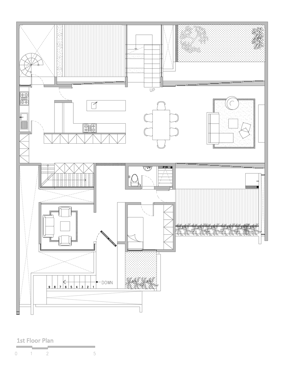
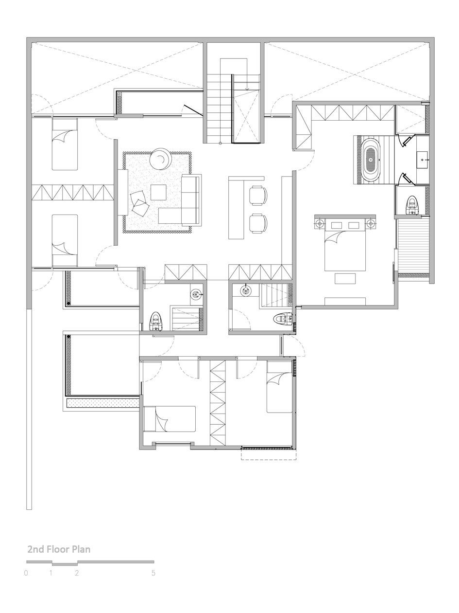
The home is based on vertical zoning, housing a family with four children, and divided as it follows: the lowest floor accommodates the service area, the second floor includes the living spaces and the third floor consists in a private space with a study room.
Because it is located in the premium neighborhood of Pondok Indah, its shape is a genuine utterance for the city space framing it.
Photos by Fietter Chalim

























More Similar Articles Like This
Seamlessly Apartment by the Beach by ZZ Architects
Best paint colors for the living room
Opulent Mandarin Oriental Hotel in Paris
Extraordinary Constance Halaveli Maldives Resort
Exploring the New World of Luxury Hoteling
Saguaro Palm Springs by Joie de Vivre
Behr’s Brilliant Blues: 70 Shades of Stunning Paint Colors
Different Types Of Foundations For Summer Houses and Garden Buildings