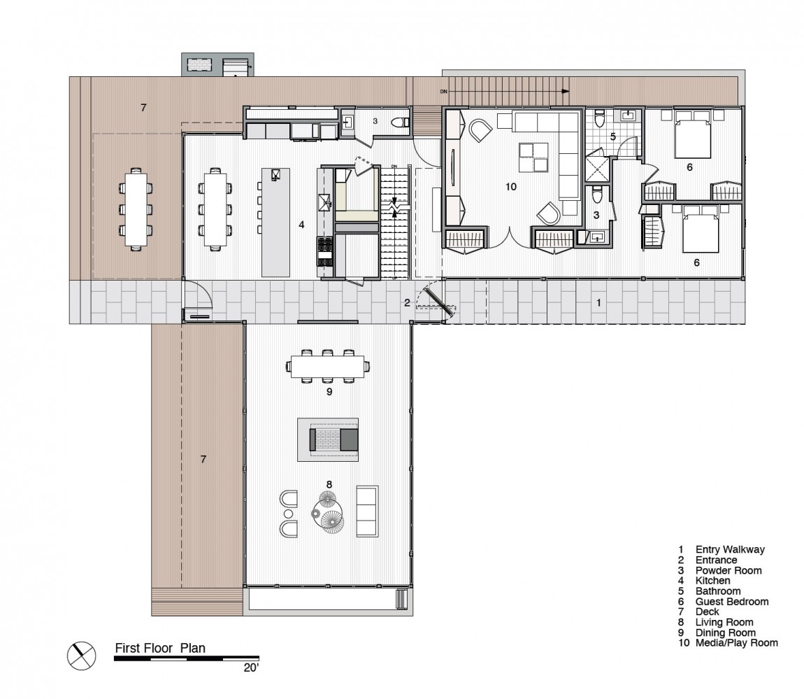
The modern and luxurious Peconic Bay Residence can be found within a village named Sag Harbor, which is a part of Suffolk County, New York. It was designed by the expert architects of a Bridgehampton-based studio named Stelle Architects, and it is absolutely stunning inside and out. The exterior design is based on two interconnected volumes that form an outdoor courtyard. The courtyard includes lounging areas, a wooden deck and a swimming pool.
Inside, sliding glass doors ensure easy access to the courtyard from the main social areas such as the living room and dining area. Speaking of the dining area, it is an intimate place that is flooded with natural light and flaunts a dining table for at least eight people. The Upper floor of the Peconic Bay Residence is reachable via a “floating” staircase that also provides access to the roof.
Skylights make sure that natural light reaches almost every room within the abode while allowing the residents to admire views of the clouds and the sky.
Photos by Michael Moran
From the architect:
The house is sited on a bluff overlooking the bay within a grove of cedar and locust trees. Discrete volumes of varying public and private functions are organized around an axial promenade, extending to the outdoors.
Single story volumes, separated by glass interstitial spaces, were utilized to lessen the overall impact of the structures while retaining lofty interiors spaces requested by the owners.
Low maintenance, sustainable materials were carefully assembled.
An efficient geothermal heating and cooling system along with highly energy efficient glazing and an advanced building insulation system resulted in a structure that substantially exceeded the requirements under the Energy Star rating system.












More Similar Articles Like This
Stunning Banyan Tree Ungasan Bali in Indonesia
The JKC1 House in Bukit Timah, Singapore
Gorgeous And Spacious Home In Sunset Strip
Boracay Resort & Spa in the Fascinating Philippines
A Superb Italianate Mansion in California, USA
Marvelous Anantara Dhigu Resort
Green Gables Home In Fairfield, Connecticut, United States
Shadowed Depths: Vintage-inspired Paint Colors for Dark Basements