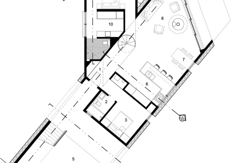
If you were searching for a place to meditate, then we are about to show you one. The Buddhist Retreat is a contemporary residence completed in 2012 by Imbue Design. It is located in Grover, Utah, USAand promotes reflection, meditation and the ability of learning how to embrace the nature.
The project was based upon an idea of creating a sanctuary for the Tibetan Buddhist practice. Now, everyday activities are mixed with spiritual rituals that honor the act of living.
In fact, the position of the house, the settlement was strategically chosen in order to offer a view that provides the state of meditation.



















More Similar Articles Like This
Santa Barbara Style Home in Paradise Valley, Phoenix
Best paint colors for the living room
A Superb Italianate Mansion in California, USA
The Sophisticated Casa Villa Flamingo in Spain
Exceptional Coronado Bay Front Estate in California
70 Shades of Green: Benjamin Moore’s Vibrant Paint Colors
Benjamin Moore Exterior Paint: Vibrant Shades for a Striking Home
Green Gables Home In Fairfield, Connecticut, United States