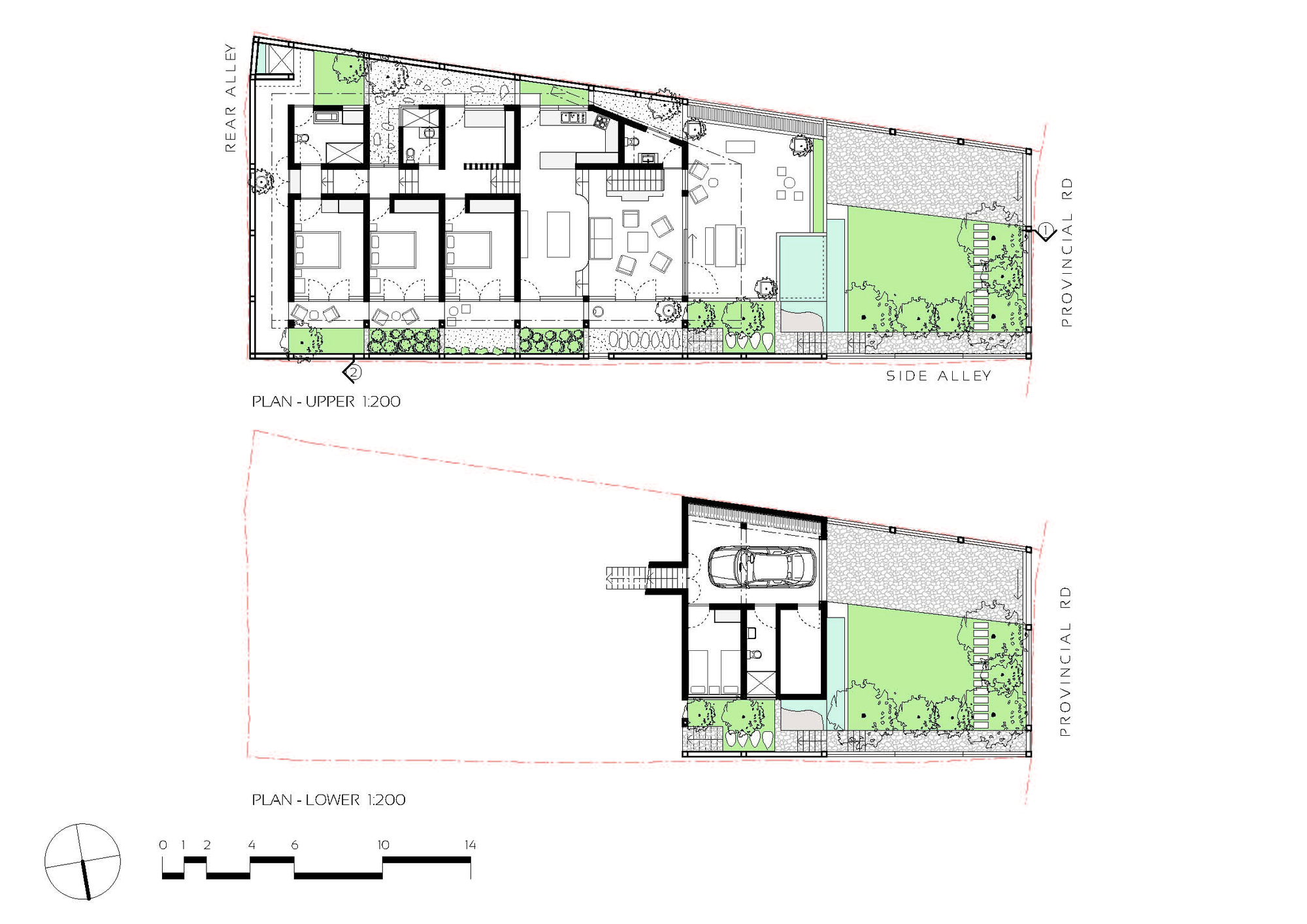
Located in the countryside of a UNESCO World Heritage Site city named Kandy in Sri Lanka, the Nisala Villa was finished in 2014 by Nath Rankothge & Associates. It boasts 3,035 square feet of living space and was constructed following local traditions and using locally sourced materials. The social and private spaces are accessed using a linear sequence.
Therefore, the social areas such as the living room, dining area and entertainment terraces are located at the front of the house under a cantilevering roof, while the private spaces and gardens are connected by a central hallway.
The furnishings are a mix of handcrafted colonial elements and Sri Lankan antiques complemented by modern pieces sketched out by Nath Rankothge. Sustainability was achieved by encouraging natural ventilation with the help of highly “openable” windows and doors that capture the natural breeze coming in from the nearby mountains. Furthermore, solar energy is used for water heating and general electricity requirements.
From the architect:
Nisala Villa is a fusion of vernacular and contemporary, Sri Lankan and Western sensibilities. Located along the village high road in the countryside of Kandy, a UNESCO world heritage city, the villa aims to respond to the rich architectural and cultural heritage, tropical mountain landscape and climate.
The design is an exercise in abstraction and simplicity, inspired by Sri Lankan ‘up-country’ living and ancient kingdoms, utilising locally sourced vernacular materials and building traditions.
Moving up the hillside and through the villa, a linear sequence of spaces and platforms unfold. There is a transition from the communal front living, dining and entertainment terrace under one generous cantilevering roof to smaller private spaces and intimate gardens connected by the central hallway.
Platforms slide underneath unifying floating timber roofs that hug and soar dramatically. The ‘platforms’ reinterpret Jorn Utzon’s essay, “Platforms and Plateaus” (Zodiac, No.10(1962):113-140). Dramatic spatial variations, environmental lighting effects, and inside-outside conditions are created by the soaring roofs, skylights, platforms and gardens. The building is fragmented, tectonic, yet a unified whole object.
Furniture is manufactured or sourced from Sri Lanka, a combination of hand-crafted colonial and Sri Lankan antiques, and complementary contemporary pieces custom designed by Nath Rankothge.
The project employs socially, economically and environmentally sustainable approaches through design, construction and operations.
Passive design features were critical to reducing the carbon and energy footprint. The effectiveness of natural ventilation, capturing breezes, cooling perimeter gardens, high ceilings, ground level living, and thermal mass have meant that air conditioning is avoided. Natural cross ventilation is promoted through a highly ‘openable’ skin of doors and windows facing perimeter gardens, and capturing a natural cooling breeze coming down the mountain on the Northern elevation. Spaces stepping up the hill are connected by the linear hallway with high level windows and louvers promoting stack ventilation. The transparent glass elevations, high windows, and skylights permit generous natural daylight, while deep, low eaves reduce direct sun penetration. Electricity consumption is minimised using solar hot water and electricity.
Engaging local labour, materials, and fabricators were integral to the design and construction process. Most construction materials and labour were sourced in Kandy or other parts of the island based on availability, sustainability, technical capability, and cost considerations. The limited selection of cost-effective, quality imported materials and advanced construction technologies in Sri Lanka is a consequence of a 3 decade long internal war that ended in 2009. As an adaptive response by architects practicing in Sri Lanka, the detail refinement of vernacular materials and use of available skills such as stonemasonry is defining a contemporary Sri Lankan architectural aesthetic. The Sri Lankan preference for the detached garden home typology has shaped an island-wide, dense, ‘tropical-suburban’ condition. Within this context, Nisala Villa demonstrates possibilities for accessible, appropriate, quality residential construction, during a period of rapid development generally characterised by low cost, substandard construction.
The boutique villa operation supports building maintenance and engages the village community. Villagers enthusiastically work with hospitality experts, develop skills, make a livelihood, engage with foreigners, and share ideas. Sensitivity to village identity and culture is paramount and the villagers are involved in decision making and implementation. Nisala Villa has become a symbol of inclusive development and culture.
Area: 282.0 sqm
Year: 2014
Photographs: Ajantha Ranaweera
Construction Management: Lal Rankothge & Nath Rankothge
Structural Engineer: Sam Samarasinghe



















More Similar Articles Like This
How Seattle Lawn Care Service Deals With Overgrown Lawns
Saguaro Palm Springs by Joie de Vivre
Exploring the New World of Luxury Hoteling
The Superb Villa Verai on Phuket Island, Thailand
Spectacular Rooftop Apartment by Innocad
Marvelous Anantara Dhigu Resort
Different Types Of Foundations For Summer Houses and Garden Buildings
Secluded Naladhu Island in Maldives