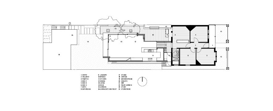
The Queen’s Park House in Sydney, Australia is a federation house designed by Fox Johnson. This family home is provided with a large north-east facing site and is perfect for a growing family.
The core of the building is in fact the outdoor garden which is inserted between old and new, providing relaxation and permitting light and breezes to permeate. All the living areas are very bright and open onto a fabulous rear garden.
One of the important things on a house is the privacy, and this one can provide it unconditionally.
Photos by Simon Wood












More Similar Articles Like This
6 Garden and Lawn Tips to Get Ready for Spring
Spectacular Rooftop Apartment by Innocad
The Sophisticated Casa Villa Flamingo in Spain
Outstanding Bodrum Houses in Yalikavak, Turkey
Stunning Banyan Tree Ungasan Bali in Indonesia
Gorgeous And Spacious Home In Sunset Strip
Boracay Resort & Spa in the Fascinating Philippines
Saguaro Palm Springs by Joie de Vivre