The Matai House was finished in 2014 by Parsonson Architects, and it is located in Wellington, New Zealand. It represents the end result of a successful renovation and expansion project, and it offers exceptional living conditions for its residing family. The villa dates back to the early years of the 1900s, and its original layout wasn’t up to par with the family’s requirements as they needed two more bedrooms as well as an extra living space.
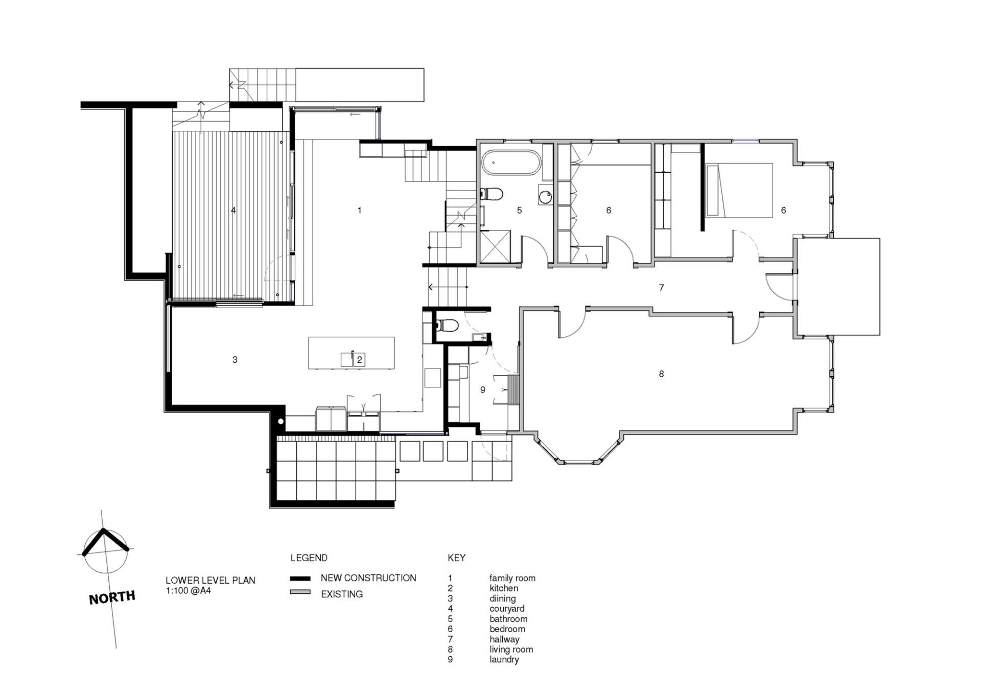
The architects decided to divide the project into two sections, namely the old villa and the new extension. The sections are linked by concrete platforms with wooden steps, which are located between an elevated family living space and a rear courtyard. A bathroom and the new bedrooms are inserted above this living space. As far as finishes are concerned, the new structure boasts concrete floors and light colored timber, while the original building features Matai floors as well as painted surfaces.
From the architect:
The family had lived in this early 1900’s Villa for several years before embarking on alterations. It was atypical villa layout, rooms running down each side of a central hallway with a viewto the laundry, toilet and kitchen areas at the rear. These received the best late sun, but were nestled up against a retaining wall holding up the bank rising up to the rear of the site. The house felt disconnected from the rear of the property and the owners needed extra living space and 2 more bedrooms for their growing family.
Together with the clients we decided todivide the house in two, the old villa and the new extension. To accentuate this difference and to connect the house with the sunny rear part of the section we created a series of concrete platforms with woodensteps between creating a new elevated family living space leading up to a larger sunnier rear courtyard. We placed 2 the new bedrooms and a bathroom above the new living space.
The roofs and outer walls of the extension are created in the same corrugated color steel as the old house, but arefolded to suit the functions they enclose and dodge the WCC building envelope.
The new living space is located directly at the end of the villa hallway. The space is visible from the front door with the steps and a raised clerestory roof lifting the eye up to the rear of the property and giving a sense of invitation. Glazing of the clerestory is behind timber slat work to filter the late low sun.
The original villa has a Matai floor with all other surfaces painted. The new addition has cool concrete floors offset by light coloured timber, white painted wallswith coloured areas.
We hoped there would be a play of light and shade, a gentleness and warmth and an invitation to explore.
Architects: Parsonson Architects
Location: Wellington, New Zealand
Architects in Charge: Gerald Parsonson, Craig Burt
Project Year: 2014











More Similar Articles Like This
Plain Geometric Residence Designed by Lidija Dragisic
Different Types Of Foundations For Summer Houses and Garden Buildings
Heavenly Lily Beach Resort & Spa In Huvahendhoo, Maldives
Gayton Road Residence by Paxton Locher Studio
Spectacular Rooftop Apartment by Innocad
Gorgeous And Spacious Home In Sunset Strip
Dreamy Oceanfront Chateau In West Vancouver, Canada
Spectacular Luxury House in Sarasota, Florida by DSDG Inc. Architects