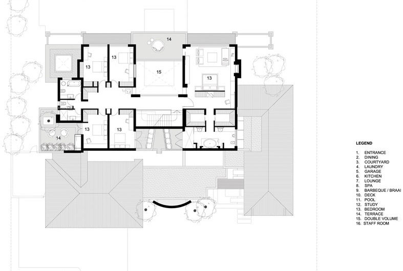
The Pearl Valley 276, designed by Antoni Associates, is an eclectic residence, located in Paarl, Cape Town, South Africa, just 30 minutes away from the Mother City of Cape Town.
The interior design is worthy of being admired due to the fancy mixture of textures that create a sophisticated and lush whole.
The owners wanted a modern home built with the help of natural materials, such as timber and stone. Timber flooring was utilized in contrast with the raw off-shutter concrete ceilings, warm stone and marble cladding.
Because the owners love to entertain, their home had to reflect their personality and their lifestyle, so the informal family areas feature an open plan kitchen, an informal dining and open bar, all connected to the entertainment lounge. The family lounge is separated by the spa room by a marble clad two-sided fireplace. All these spaces open onto the entertainment deck with a sunken outdoor boma.
The optimism and the joy of the clients were implemented in the house by using injections of daring prints, vibrant fabrics and a combination of bold and discreet lighting.
















More Similar Articles Like This
Heavenly Lily Beach Resort & Spa In Huvahendhoo, Maldives
How Seattle Lawn Care Service Deals With Overgrown Lawns
Unique Click Clack Hotel In Bogota, Colombia
Beach House CN – A Superb Contemporary Home in Peru
Superb Luxury Penthouse in Portomaso, Malta
5 Ways to Turn Your Yard Into a Fancy Space
Marvelous Anantara Dhigu Resort
Pure Perfection: Discover the Top White Paint Colors for a Flawless Décor