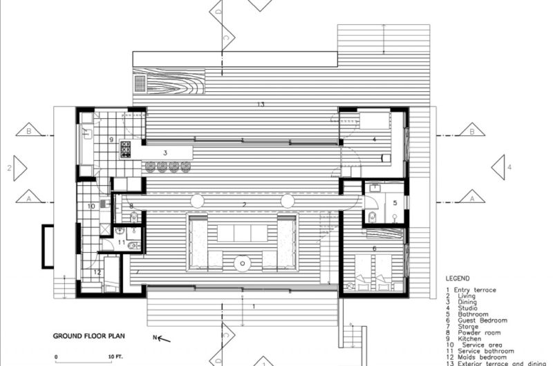
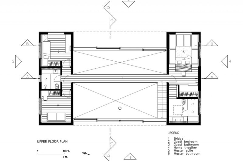
Located in Iporanga, São Paulo, Brazil, this 4,300-square-foot residence was completed in 2005 by studio Arthur Casas. Below you have a series of photos showing the beautiful house.
Lovely Contemporary Home in Iporanga by Arthur Casas
Darcie George
I'm Darcie George, a writer who explores home paint. My stories are about making homes look great with colours. Let's learn how to choose paints and create cozy, beautiful spaces together. Join me in discovering the magic of home painting!





















More Similar Articles Like This
These Top Tips Will Help You to Turn Your Garden into the Ultimate Glamping Site!
Exploring the New World of Luxury Hoteling
Wonderful Yachting Club Villas at Elounda Beach by Davide Macullo Architects
Beautiful Apartment in Stockholm for $1 Million
Different Types Of Foundations For Summer Houses and Garden Buildings
The Sophisticated Casa Villa Flamingo in Spain
Benjamin Moore Exterior Paint: Vibrant Shades for a Striking Home
70 Shades of Green: Benjamin Moore’s Vibrant Paint Colors