Local House is the result of a successful expansion and renovation project that was finished in 2014 by MAKE Architecture. It is located in Saint Kilda, Victoria, Australia, and it was designed to fulfill its onwers’ needs for socialization and comfort. Its interior spaces are so inviting that they give off the feeling of being in a local cafe.
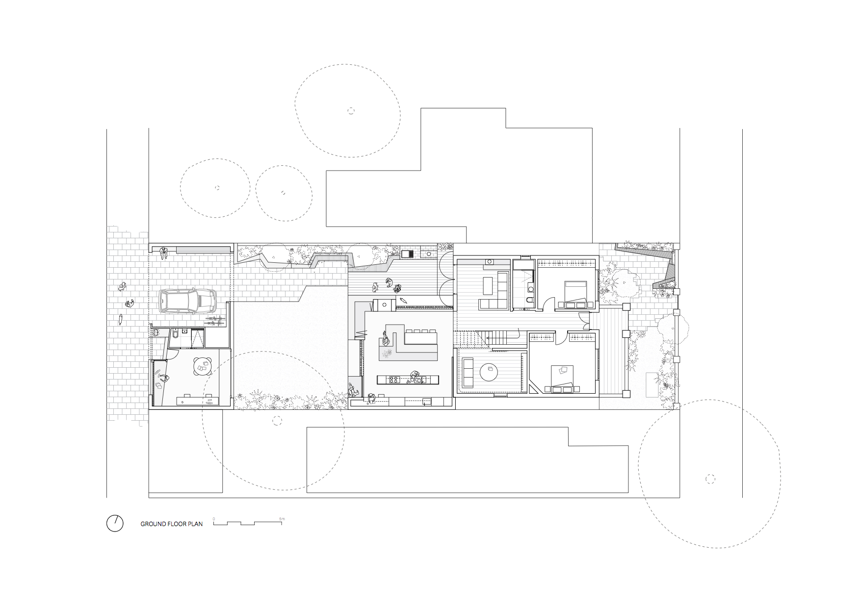
The site initially included just a simple Californian Bungalow, which is now complemented by a modern gable-like two-level volume at the rear. The expansion involved the extensive use of concrete, especially if we’re talking about the heavy base for the new volume or the various integrated benches, seats and durable surfaces. The dining area and the kitchen are a part of the same space, which opens up fully to the back yard and creates the feeling of being in a garden pavilion.
At the rear of the house, the residents are able to enjoy access to a new studio garage, which seamlessly connects to the laneway.
From the architect:
Inspiration for this project comes from thinking about how this family live and enjoy life. Spaces are playful; conceived more like a favourite local café than a private house, reflecting this family’s desire to create a home that allows them to connect with friends, family and their local community.
The existing Californian Bungalow has been kept intact with the addition of a new contemporary ‘gable like’ 2 storey element to the rear. The new volume is shifted off the side boundary to open up the living spaces to the sun and to connect the kitchen/dining space to the rear garden.
Off-form concrete has been used to form a heavy base with large expressed vertical elements connecting the base to the site. Concrete has also been used internally to create integrated seats, benches and durable surfaces for family life. Floating over the base, a decorative timber screen fills the end of the upper extruded gable roof form, giving warm contrast to the concrete and containing the main bedroom within. The angled panels of the screen mediate the sun and control overlooking to the neighbours, while still providing distant views over the rooftops beyond.
Avoiding the ‘white box on back’ renovation, this project attempts to create intimate though connected, family spaces. The kitchen/dining space opens fully to the backyard and feels more like being in a garden pavilion than the interior of a house. The black ceiling and kitchen joinery recede into the background with off-form concrete surfaces and red brick of the existing house giving a sense of external durability. The use of whiteboard paint turns a painted wall into a family noticeboard. Notes and lists in bright neon markers on the black wall enhance the feeling of a local café. Design elements encourage social interaction and engagement; the indoor outdoor fire place, pizza oven and landscape seat edges. Steps and small seats have been incorporated into the design wherever possible to provide informal spots to sit and reflect.
The rear of the house has been designed as another ‘front’ with a new flexible studio garage an important part of the project. Viewed from the house and providing an opportunity to connect with the laneway community at the rear it needed to be elevated beyond the typical shed/ garage response. Views from the lane through the studio and garage are kept open with visibility all the way through to the house. To further reinforce the connection a laneway concrete seat becomes garage joinery and landscape edge. Bluestone pavers also extend the bluestone cobbles into the site. The studio frontage becomes more like shopfront than a garage.
This project has been designed to be robust and durable; to take the knocks of family life. Whilst it’s not precious or delicate, it didn’t mean that ideas of beauty and delight weren’t important to the design thinking. Moments of surprise and delight are incorporated wherever possible; concrete joinery as seat and bench rolled into one, the floating stair as spatial divider and bookshelf, ‘pops’ of yellow in the kitchen joinery and ensuite tiles, the studio desk opening to the laneway, dappled light from the timber screen, a small laneway porch with a neighbourhood seat, recycled fence palings as concrete formwork. These are some of our favourite moments.
Social sustainability has also been an important consideration; we look for ways our projects can make positive contributions to communities and those that live in them. The rear of the house and studio actively engage with the lane as a valued street address. Rather than turn its back on the rear laneway it faces, the studio space has a fully operable window, desk, neighbourhood seat and a small porch that all activate and connect with the communal public space. We hope this positive ethos contributes to a socially sustainable community, knowing that ultimately this will help this house and suburb be a happy place to live.
Location: Saint Kilda VIC 3182, Australia
Year: 2014
Photographs: Peter Bennetts
Project Team: Melissa Bright, Bruce Rowe, Rob McIntyre, Gillian Hatch, Emily Watson, Todd DeHoog
Engineer: Hive Engineering
Builder: 4AD Construction

















More Similar Articles Like This
Benjamin Moore Exterior Paint: Vibrant Shades for a Striking Home
Pure Perfection: Discover the Top White Paint Colors for a Flawless Décor
Wonderful Yachting Club Villas at Elounda Beach by Davide Macullo Architects
Tips for Choosing the Right Blue Paint Color for Your Dining Room
Unique Click Clack Hotel In Bogota, Colombia
Lovelli Residence: Mediterranean-Style Dwelling in Bali
Spectacular Luxury House in Sarasota, Florida by DSDG Inc. Architects
The Superb Maradiva Villas Resort & Spa in Mauritius