The spacious and inviting LM Residence is located in Curitiba, State of Paraná, Brazil, and it was completed in 2008 by Marcos Bertoldi Arquitetos. It flaunts 8,083 square feet of space and was built on a rugged, wooden site that features a fairly steep slope. The architects wanted to preserve as many as the local trees as possible while respecting the terrain’s drainage lines and natural topography. Therefore, they created the LM Residence using a reinforced concrete pavilion that rests upon six sturdy pillars. The primary material used for this project is exposed concrete, and it was chosen as a nod to the beautiful homes of Curitiba City during the 70s.
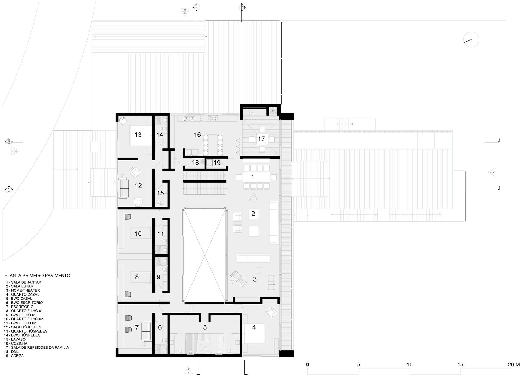
The concrete box features a rectangular shape and incorporates the social and private areas of the as well as a pool deck. The private spaces comprise a gourmet kitchen, four lavish suites and a separate apartment for guests. There is also a special service volume that houses the laundry area, a studio, a sound and video room and a spa. Inside, the furnishings were chosen carefully in order to achieve aesthetic harmony as far as materials, shapes and proportions are concerned.
From the architect:
Architecture always offers the opportunity for recreation of an era, revealing the cultural level, habits and great civilization and development of a certain population.
In this case the site, very rugged, fully wooded and with the main slope facing south, a number of parameters and approaches are set for our future decisions. Therefore, the entire pavilion in reinforced concrete, sheltering the main program of the house, was built on six pillars, preserving a greater number of native trees, the topography and natural drainage lines of the terrain.
The concrete box
The concrete box, rectangular in plan, permeated by the great void, shelters the social area of the house. This area is also integrated into the pool deck, on the roof of the service volume. The private area, consisting of a guest apartment and four suites, plus a gourmet kitchen are also laid out in the main box.
A large central void was included, allowing all spaces to be oriented north, solving the problem of facilities in the social area, which overlooking the scenery, would only face to the south. Metal pillars, on the lines of the frames, support the roof slab in the main opening to the south and in the central void.
The exposed concrete is the main material of the project, seeking to restore a dialogue with the exposed concrete houses, that permeate the city of Curitiba in the 70s, and have no continuity in the following decades.
The service volume
The main volume is supported by a transverse block, which is hinted at in the access staircase, which connects the street to the house and continues on the service block of white masonry with a range of support program for the residence such as: academia, spa, studio, sound and video room, and laundry facilities. Through this block the user descends to the lower areas of the site.
Metal grid flooring
The flooring in the pedestrian and vehicle access, and in the garages, is elevated on a metal structure, distant from the natural ground. The metal grid flooring ensures the regeneration of local fauna and flora.
Interior design
The support for the interior design given by the architectural space is underlined by the furniture and artwork. Each item is individually analyzed for their shape, proportions, materials, technique, time and relevance. We seek a selection of pieces that work individually, through referential pieces of international and Brazilian modernist and contemporary furniture, without losing sight of the balance and harmony. The composition without losing sight of the balance is the harmony of the project. The asymmetrical composition of furniture becomes the fluid and dynamic space, and the void seamlessly integrates furniture from one environment to the other, with continuous movement of the eye. A balance between free and occupied spaces. The composition is designed from the user’s movement or travel, always attentive to the infinite perspectives generated by full and void, shapes, proportions, colors and textures of each item included in the composition.
Location: Campo Comprido, Curitiba – State of Paraná, Brazil
Project Area: 751.0 m2
Project Year: 2008
Photographs: Alessandra Okazaki
Interiors: Marcos Bertoldi Arquitetos
Lighting: Marcos Bertoldi Arquitetos
Structure: Pórtico Estruturas – Eng. Ruy Vieira Gosch E Eng. Helton Gabardo
Foundations: Escoll – Eng. De Solos E Concretos Ltda
Electrical: Eduardo Ribeiro – Escritorio De Projetos
Hydraulics: Eduardo Ribeiro – Escritorio De Projetos
Hvac: Bom Ar
Construction: Construtora Greenwood
Suppliers: Portas e Brises – Madeira Certa; Vidros e Esquadrias – Alumicorte; Lâmpadas e Luminárias – VM3 | Iluminar; Pisos Deck Externo – Formighieri; Piso Interno – Natur;; Concreto – Caue Croncretos; Tintas, Volume Exterior – Top Seal (Concreto Aparente) | Terracor (Laqueamentos Pampa); Ar Condicionado – Bom Ar; Cozinhas – Kitchens





















More Similar Articles Like This
Exquisite Crossacres Mansion In Surrey, England
Marvelous Anantara Dhigu Resort
Seamlessly Apartment by the Beach by ZZ Architects
Shadowed Depths: Vintage-inspired Paint Colors for Dark Basements
Best paint colors for the living room
The Superb Maradiva Villas Resort & Spa in Mauritius
Secluded Naladhu Island in Maldives
Tips for Choosing the Right Blue Paint Color for Your Dining Room