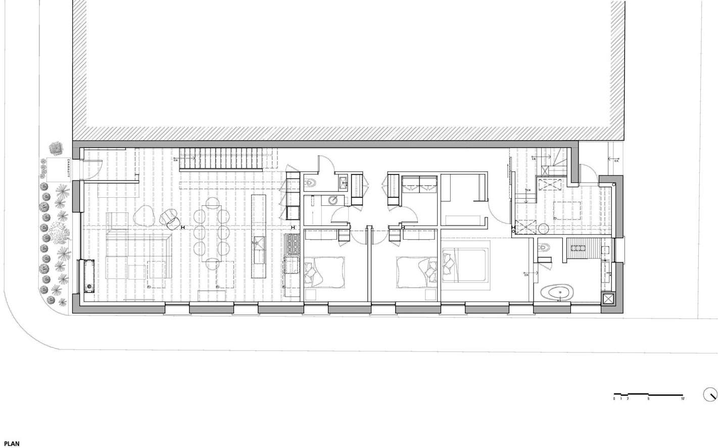
Flaunting a minimalistic and elegant interior design, Le 205 is a residence in Montreal, Canada that was designed by Atelier Moderno. The building dates back to the 1950s and was renovated masterfully in order to accommodate a designer, his two sons and their dog in irreproachable conditions. The residents are able to socialize and relax in a large common area that incorporates the kitchen, dining room and living room.
The kitchen stands out due to its white Corian® preparation island, stainless steel cooking area, white oak table and spacious storage unit. The green terrace found on the roof can be accessed using a staircase with seemingly floating steps. Aside from the common area, the residence also flaunts accommodations for the boys and a master bedroom that features a private bathroom. The master bedroom is undoubtedly the most impressive room in the house, all thanks to its high quality finishes based on ipe wood, stainless steel, porcelain and glass.
Le 205 was designed to be as environmentally-friendly as possible, which is why it boasts the green roof that we mentioned before as well as skylights, radiant slab heating and reliable insulation.
From the architect:
A designer, his two sons, and their tireless terrier Winston share a small 1950’s building that stands rather unnoticed among its neighbors in the Mile-Ex district. The robust walls of this former workshop, however, hide a jewel conversion within.
If the recomposed facade is surprisingly private, its large windows and full-height steel door, slightly recessed, announce the minimalist mastery of the interior plan: a wide corridor extends along the north-south axis, adjacent an existing party wall of exposed masonry accentuated by a thin line of light, serving well-defined living spaces, bright and convivial, where everyone can go about their activities without affecting those of others, all the while fostering a certain air of intimacy and affection.
The interior opens onto a common area that includes a cozy living room with a corner desk, a dining room, and a streamlined kitchen where each element asserts its modernity with absolute conviction: a stainless steel cooking unit, a preparation island in white Corian®, and a large storage module and table in solid white oak. A single stringer staircase provides direct access to a green roof terrace, offering both privacy and urban presence. Beyond the common area follows, in sequence, the boys’ rooms and the master bedroom, with a private bath, distinguished by the marriage of painted concrete, ipe wood, porcelain, stainless steel, glass, water and the occasional fire of a small brazier.
The desire to reduce the environmental footprint of the building by the addition of skylights, soy-based spray insulation, radiant slab heating, and a green roof, as well as the preservation and enhancement of existing elements, whether it be the original structural elements, the old doors, windows, and gratings, or, in a more personal manner, the reclamation of a lamp and vintage furniture that once belonged to his father, add a final richness to the project that emanates the image of the men who inhabit it.
Year: 2014
Photographs: Stéphane Groleau
















More Similar Articles Like This
Beach House CN – A Superb Contemporary Home in Peru
5 Ways to Turn Your Yard Into a Fancy Space
6 Garden and Lawn Tips to Get Ready for Spring
Exploring the New World of Luxury Hoteling
Shadowed Depths: Vintage-inspired Paint Colors for Dark Basements
Lovelli Residence: Mediterranean-Style Dwelling in Bali
Loving Luxury at Mardan Palace Resort, Turkey
Saguaro Palm Springs by Joie de Vivre