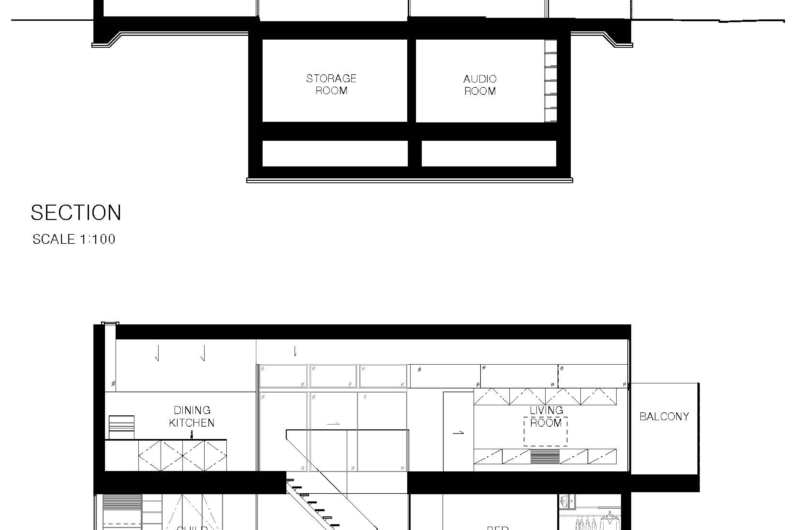
The Neut House, completed by APOLLO Architects & Associates in 2012, is located in Tokyo, Japan. Because the owners have a passion for music, they created on the basement level a RC-structure studio insulated on the exterior. The studio is naturally lit making the space exceptionally inhabitable.
The balcony, protected by horizontal wooden slats, extends from the building and acts as a canopy over the garage.
The use of concrete and wood as well as the gabled roof, provides warmth for the interior’s ambience. The design technique makes the owners feel that they don’t live in a dense residential district.


















More Similar Articles Like This
Best paint colors for the living room
Lawn Care Tips, The Basics For Each Season
The Superb Villa Verai on Phuket Island, Thailand
Contemporary BO House In Envigado, Antioquia, Colombia
Spectacular Luxury House in Sarasota, Florida by DSDG Inc. Architects
70 Shades of Green: Benjamin Moore’s Vibrant Paint Colors
Green Gables Home In Fairfield, Connecticut, United States
Shadowed Depths: Vintage-inspired Paint Colors for Dark Basements