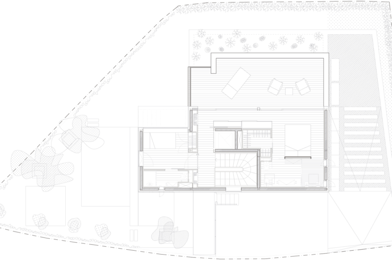
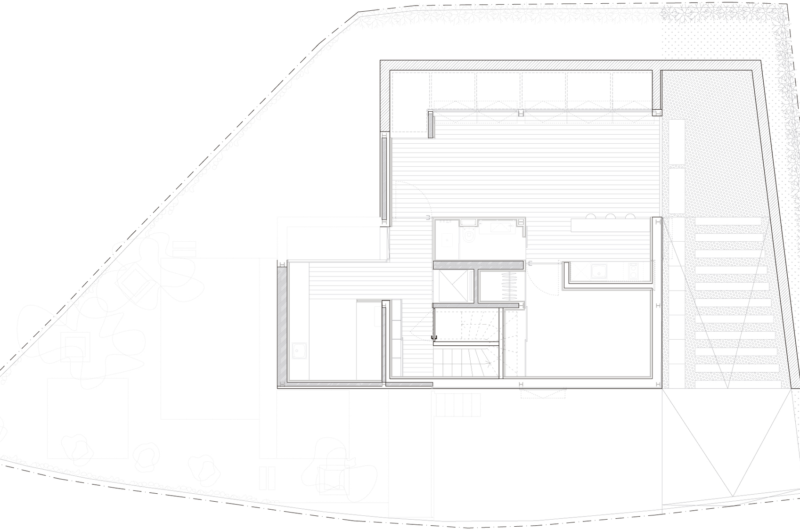
The TdM House in Barcelona, Spain was designed by Bbats+Tirado architects. It looks like a simple origami cube that was specially constructed to respond to two separate dwellings.
Topography plays an important role in accessing the house and for the interior-exterior tour.
The project became a finalist in the Catalonia Construction Awards 2009 due to its structural system that uses an innovative orthogonal metal frame which represents a new material in residential construction.
Photos by Francisco Nogueira














More Similar Articles Like This
Outstanding Bodrum Houses in Yalikavak, Turkey
Heavenly Lily Beach Resort & Spa In Huvahendhoo, Maldives
70 Shades of Green: Benjamin Moore’s Vibrant Paint Colors
Lovelli Residence: Mediterranean-Style Dwelling in Bali
Behr’s Brilliant Blues: 70 Shades of Stunning Paint Colors
Astonishing El Tovar by the Sea
Stunning Banyan Tree Ungasan Bali in Indonesia
Exceptional Coronado Bay Front Estate in California