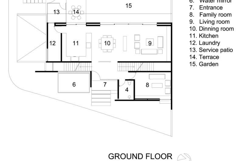
Agraz Arquitectos have recently completed the House X project in Puerta del Bosque, Mexico. It is a beautiful two-story contemporary home that is very opened towards the lovely outside areas. The living, dining and kitchen area for instance is seamlessly linked to the garden patio, with only large sliding glass doors separating the two spaces.
The first floor holds the main bedroom with bathroom and dressing room, plus two additional bedrooms, both with their own baths and dressings. The underground level houses the garage, the service room, a cellar and a bathroom. The materials, the colors and the shapes, everything makes House X a warm and inviting contemporary residence.





































More Similar Articles Like This
Seamlessly Apartment by the Beach by ZZ Architects
Tips for Choosing the Right Blue Paint Color for Your Dining Room
Saguaro Palm Springs by Joie de Vivre
Boracay Resort & Spa in the Fascinating Philippines
70 Shades of Green: Benjamin Moore’s Vibrant Paint Colors
The Superb Villa Verai on Phuket Island, Thailand
Marvelous Anantara Dhigu Resort
Astonishing El Tovar by the Sea