Completed in 2013 by Andrés Stebelski Arquitecto, the House with Four Courtyards is located in Mexico City, Mexico, and it flaunts 3,390 square feet of living space. It replaces an older abode that was occupied a heritage area in the old town of Tacubaya. Surrounded by a 19-foot wall, the residence offers utmost privacy and boasts a unique design that reinterprets the use of the courtyard in a modern way.
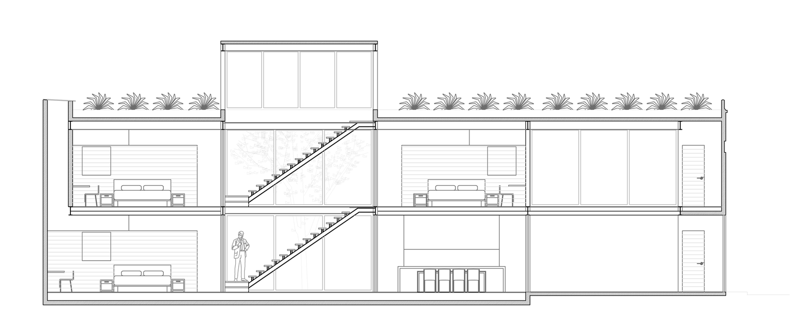
The first floor includes the public living areas such as the kitchen, dining room, study, laundry, parking space and the entryway. The second level incorporates three bedrooms, each with its own bathroom and dressing room. The two floors as well as the courtyards and stairs are linked by the living room, which is a well lit, double height space. Due to the extensive use of glass elements, the vegetation present in the courtyards becomes a part of the house. The roof accommodates a garden that regulates interior temperature and offers great opportunities for relaxation.
From the architect:
Located in the heritage area of the old town of Tacubaya, this house aims to reinterpret the use of the courtyard in a contemporary manner. In the lot there was a very run down structure, which was demolished to build the new house.
A perimeter wall 6 meters high insulates the house from its environment, containing the space. This wall becomes a discreet facade towards the street that respects the height of the neighboring properties and the harmony of the street. On the ground, the house reads like a chessboard, alternating solid volumes and courtyards; but as the house is made of glass throughout, the space is conceived as one: the inside becomes the outside and vice versa.
The metal structure plays an important role in the project, it creates a three-dimensional grid which defines the spaces; it is also slim enough to allow transparency. The structure is visible both in the ceilings and floors giving rhythm and order.
The house has two floors, on the first there are the public spaces: entrance, parking, laundry, kitchen, dining room and study. On the second floor there are three bedrooms with their own dressing rooms and bathrooms. The living room, double height, spatially connects the two floors, stairs and courtyards.
The vegetation of the courtyards becomes a part of the house, giving the impression of living in contact with the outside. Thanks to the courtyards, the sun bathes the house all day creating a play of reflections and shadows that animate the space.
The roof is a garden with a glass cube protruding amid the plants; it regulates the temperature of the house and is the ideal place to read, watch the vegetation and the roofs of the old town of Tacubaya.
Architects: Andrés Stebelski Arquitecto
Location: San Miguel Chapultepec, 11850 Mexico City, Federal District, Mexico
Project Area: 315.0 m2
Project Year: 2013
Photographs: Onnis Luque
Manufacturers: Comex, Kardel, Val y Val, Zkava
Structure: Mata/Triana Ingenieros
Building Services: RCL Instalaciones
Construction: Lucio Núñez
Landscape: Manuel Quintanilla













More Similar Articles Like This
5 Ways to Turn Your Yard Into a Fancy Space
6 Garden and Lawn Tips to Get Ready for Spring
Exquisite Crossacres Mansion In Surrey, England
The Superb Maradiva Villas Resort & Spa in Mauritius
Spectacular Luxury House in Sarasota, Florida by DSDG Inc. Architects
Exceptional Coronado Bay Front Estate in California
Vibrant Concrete Floor Paint Colors to Elevate Your Space
Saguaro Palm Springs by Joie de Vivre