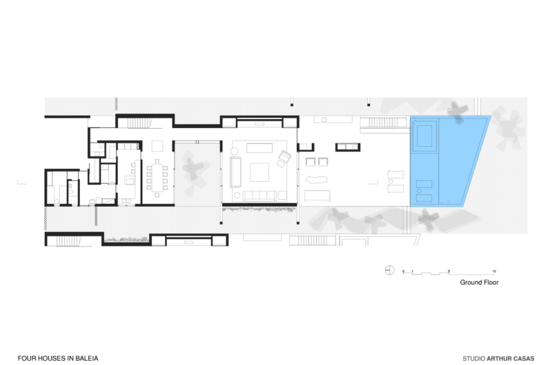
These 4 luxurious residences were designed by Studio Arthur Casas, and they can be found in Baleia – Praia da Baleia, São Paulo, Brazil. Completed in 2012, the abodes occupy 25,187 square feet of space, and even though they are found in close proximity to each other, they each offer utmost privacy and comfort for their inhabitants. The architect that was in charge of this amazing project was Arthur Casas himself.
Each home features social areas on its ground floor and boasts large glass panels that blur the boundaries between the indoors and outdoors. Speaking of the outdoors, the terrace features lounging chairs placed in close proximity to a swimming pool. There’s also a sauna and a Jacuzzi at the basement level, while a special barbecuing area is found at the rear of the patio. The 3 floors of each house are linked via wooden staircases. The first floor includes the master bedroom with its large, comfortable bed and large windows that ensure breathtaking views of the sea. The second floor flaunts a sunbathing deck placed directly above the master bedroom as well as a home theater that can be used to enjoy great movies in fantastic detail.
The ingenious design of each house ensures optimum cross ventilation, which means that cooling via air conditioning is simply not needed during the warm months. The privacy that we mentioned before is enhanced by the plethora of tropical plants found on the site.
Photos by FG+SG | Fernando Guerra






















More Similar Articles Like This
A Superb Italianate Mansion in California, USA
Dreamy Oceanfront Chateau In West Vancouver, Canada
Lawn Care Tips, The Basics For Each Season
Gayton Road Residence by Paxton Locher Studio
Beach House CN – A Superb Contemporary Home in Peru
The Superb Villa Verai on Phuket Island, Thailand
These Top Tips Will Help You to Turn Your Garden into the Ultimate Glamping Site!
Wonderful Yachting Club Villas at Elounda Beach by Davide Macullo Architects