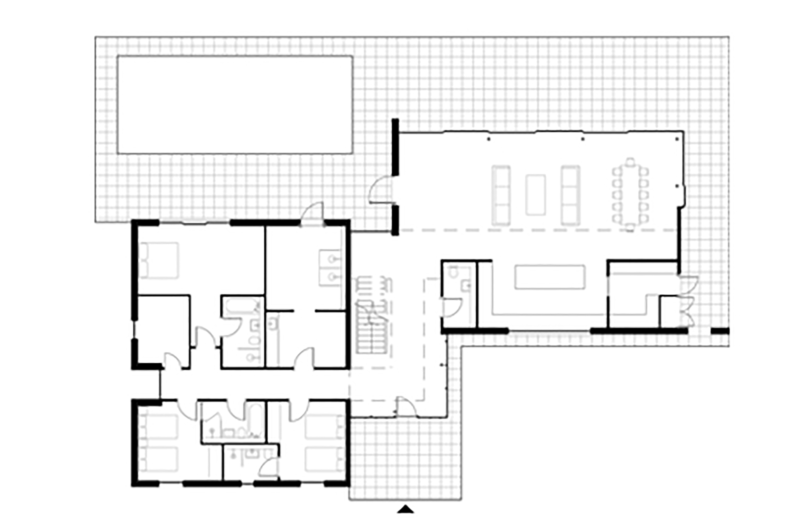
The Fishbourne Quay residence is a part of a larger development area that is found on the Isle of Wight in the United Kingdom. The house was built on top of a slab that used to belong to an industrial building, and it sits close to the mouth of a river inlet. It features a private bedroom area that is separated from the main living spaces by a two-story atrium.
The living room is open and spacious, and it boasts large floor-to-ceiling windows as well as glass doors that strengthen a connection with the outdoor areas. The house is heated using air source heat pumps, and it was built in such a way as to minimize its natural solar gain except in the late hours of the afternoon. This is a perfect home for anyone who prefers to spend his free time on a boat, floating away on a tranquil river.
As far as accommodations are concerned, the Fishbourne Quay residence flaunts 6,243 square feet of living space as well as plenty of high-end amenities and facilities that support a carefree lifestyle.
Architects: The Manser Practice Architects + Designers
Photos by Hufton+Crow














More Similar Articles Like This
A Superb Italianate Mansion in California, USA
Boracay Resort & Spa in the Fascinating Philippines
Heavenly Lily Beach Resort & Spa In Huvahendhoo, Maldives
Astonishing El Tovar by the Sea
Exploring the New World of Luxury Hoteling
Loving Luxury at Mardan Palace Resort, Turkey
Spectacular Rooftop Apartment by Innocad
10 Different Types of Blue Paint Colors