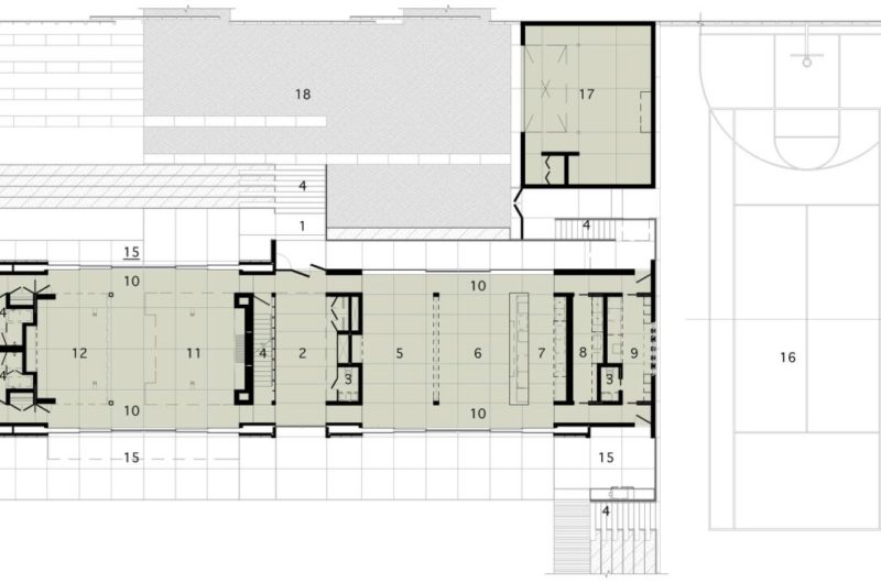
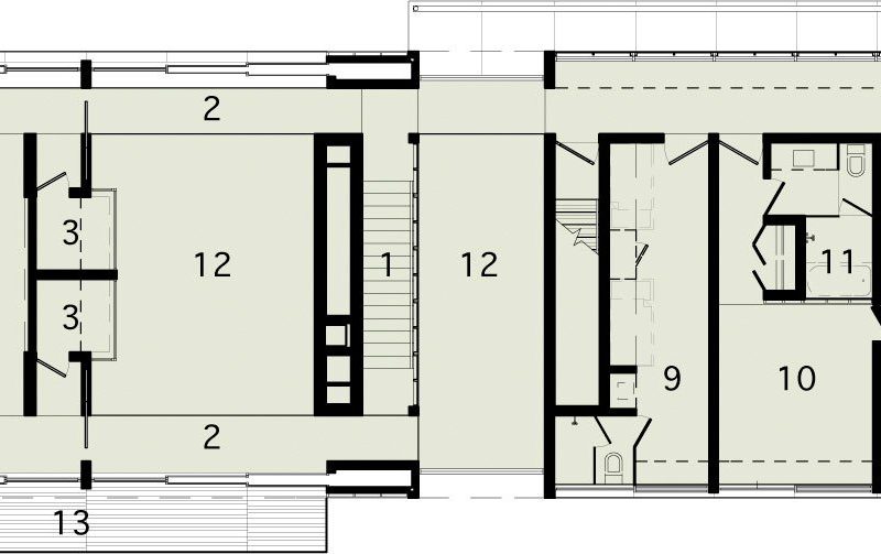
Sagaponak House is a residence located between the Atlantic Ocean and a freshwater pond, in Sagaponack, New York, which was designed by Bates Masi Architects. It’s a home for a couple and their four kids, including a lawn, a swimming pool, a pool house, a garage, sports courts and plenty of space for them and for many guests.
The house is emphasized by floor-to-ceiling windows that not only embellish the indoor and the outdoor space, but also provide views, light and natural ventilation.
In order to establish the minimum first floor height, it was used a steel moment frame to shrink the thickness of the floors and roof to the minimum.
The idea of creating an extensive program could be implemented only by nesting spaces within one another, that’s why you’ll find a media room carved into the living room. When the partitions are open, the media room becomes one with the living room, creating enough space for gatherings.
The materials used in building the project were chosen because of their durability in the difficult coastal environment. The ebony finish that penetrates the material and provides it endurance, is created by using a Victorian technique which consists in the fact that the iron sulfate in a mix with white vinegar and iron fillings reacts with the tannis in wood.
It’s a nature-friendly home due to the use of geothermal heating, cooling and vegetated roofs that reduce the environmental impact.




















More Similar Articles Like This
Different Types Of Foundations For Summer Houses and Garden Buildings
Amazing Four Seasons Resort Bora Bora
Pure Perfection: Discover the Top White Paint Colors for a Flawless Décor
Beach House CN – A Superb Contemporary Home in Peru
A Superb Italianate Mansion in California, USA
Stunning Sustainable Home in Costa Rica by SPG Architects
Exceptional Coronado Bay Front Estate in California
Beautiful Apartment in Stockholm for $1 Million