Modern, comfortable and easy on the eyes, the PC House was designed by a team of architects from EDDICO who were led by Andrés Rodrigo, Giorgio Dellepiane and Jose Carrera. The design team consisted of Jorge Pizzorno, Frank Saboya, Silvana Sierra and Elmer Ramírez, while the main constructor was Hernán Mendivil.
The residence is a fine example of modern architecture and benefits from a prime location overlooking the beautiful sea. As such, the home offers superb views of the crystal clear waters from almost every room and benefits from a high degree of transparency that was achieved with the help of large floor-to-ceiling windows.
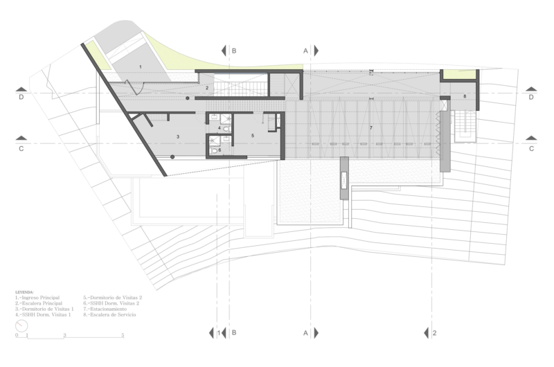
Bathed in natural light and beautifully decorated, this home gives off a sense of tranquility and comfort at each and every turn. The main social areas are included in a double height space that faces the endless horizon from the core of the building. Interior amenities include large sofas, flat screen TVs, large dining tables and an interior staircase that links the 3 floors and ensures an optimum separation between the private and social living spaces.
You can admire the PC House in the images below.





















More Similar Articles Like This
Stunning Banyan Tree Ungasan Bali in Indonesia
70 Shades of Green: Benjamin Moore’s Vibrant Paint Colors
Loving Luxury at Mardan Palace Resort, Turkey
Extraordinary Constance Halaveli Maldives Resort
Behr’s Brilliant Blues: 70 Shades of Stunning Paint Colors
Marvelous Anantara Dhigu Resort
Boracay Resort & Spa in the Fascinating Philippines
Exquisite Crossacres Mansion In Surrey, England