Belas I is a magnificent private home that was sketched out by a team of architects from Estúdio Urbano, and it can be found in Sintra, Portugal, within an area called Belas Clube de Campo to be precise.
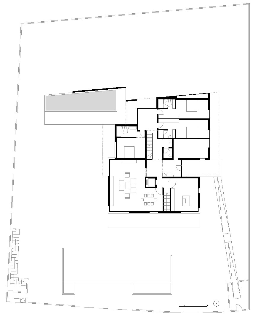
The residence spreads generously horizontally but it also features 3 floors, which means that it has more than enough space to accommodate a large family and its fortunate guests. The first floor includes the housekeeper accommodations, the garage, the service area and the laundry room, while the second floor comprises the living room, bedrooms, kitchen and office. The third floor is reserved entirely for the master bedroom, which is undoubtedly the most impressive area within the abode.
Outside, the Belas I House features a carefully trimmed garden and a large swimming pool. The fabulous views of the surrounding environment can be admired from multiple balconies, which were placed at a high elevation in order to create a tension between the home itself and its nearby garden.
From the Estúdio Urbano:
The house is located inside the Belas Clube de Campo, a private condominium, where topography allowed to maximize exterior areas and offer privacy to the users.
The project extends throughout three floors; the first floor comprehends garage, maid room, laundry room and technical area; the second floor comprehends the office, living room, kitchen and bedrooms; the third floor is entirely occupied with the master bedroom.
The tension between the house and garden is obtained through the creation of “balconies” that are intentionally higher than needed. The same tension was created between the house and the sky through the thick solar shades. Autochthonous vegetation occupies the extensive gardened areas.
Photos by Joao Morgado

























More Similar Articles Like This
Superb Luxury Penthouse in Portomaso, Malta
Wonderful Yachting Club Villas at Elounda Beach by Davide Macullo Architects
The Sophisticated Casa Villa Flamingo in Spain
Secluded Naladhu Island in Maldives
Lawn Care Tips, The Basics For Each Season
Spectacular Luxury House in Sarasota, Florida by DSDG Inc. Architects
Best paint colors for the living room
Stunning Banyan Tree Ungasan Bali in Indonesia