Spacious, minimalistic and luxurious, these two homes are a part of a project named Blanco Oostduinkerke, and they are located in Koksijde, Belgium. Designed by BURO II & ARCHI+I and completed in 2015, these two multi-story residences feature 10,677 square feet of living space and blend nicely into the landscape.
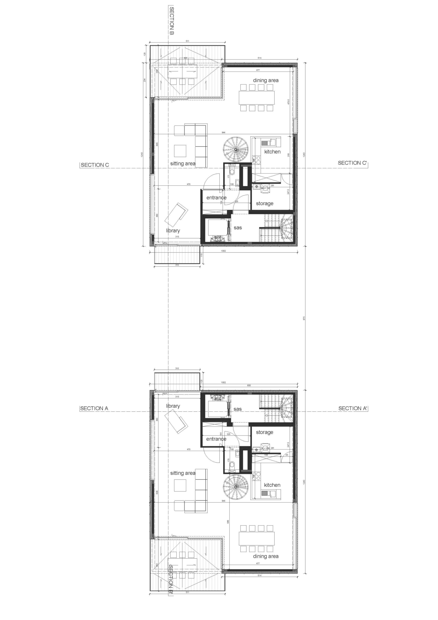
They each include two stories and an attic, and each floor comprises a three-bedroom apartment or a duplex. Access between the different levels is ensured by indoor spiraling staircases that boast seemingly floating steps. Designed following principles of white coastal architecture but with a modern twist, the abodes feature white aluminum facades and roofs. Outside, dune grasses adorn the terraces and frame the pathway leading to the entryway.
From the architect:
The design of these two multi-storey properties respects the scale of the adjacent residential centre. Both buildings are able to optimally integrate in the landscape as a result of their underground garage and the planting of dune grasses. The buildings each consist of two floors plus an attic floor. Each floor houses a three-bedroom apartment or duplex. A uniform design was adopted for the façade and the roof to achieve a striking and distinctive architectural style. The preferred choice was white aluminium, as a contemporary application and interpretation of the white coastal architecture. The shell was constructed using a white aluminium standing seam system, which is ideal for use on the wall as well as the roof. Due to its scale, purity and simplicity in terms of volume, façade composition, details and use of materials, the buildings blend effortlessly into their surroundings. The open space is planted with dune grasses, through which a path meanders to the entrance and terraces of the ground floor apartments.
Location: Dewittelaan 26, 8670 Koksijde, Belgium
Area: 992.0 sqm
Year: 2015
Photographs: Thomas de Bruyne
Project Director: Tom Vandorpe
Design Architect: Riet Ide
Project Architect: Xavier Nolf
Interior Architecture: Frederic Kielemoes
Project Management: Hectaar nv
Structural Conception: BM Engineering
Structural Work: Jean-Marc Deprez
Landscape Architect: BURO II & ARCHI+I














More Similar Articles Like This
Tips for Choosing the Right Blue Paint Color for Your Dining Room
Opulent Mandarin Oriental Hotel in Paris
A Superb Italianate Mansion in California, USA
Santa Barbara Style Home in Paradise Valley, Phoenix
Heavenly Lily Beach Resort & Spa In Huvahendhoo, Maldives
Pure Perfection: Discover the Top White Paint Colors for a Flawless Décor
70 Shades of Green: Benjamin Moore’s Vibrant Paint Colors
Plain Geometric Residence Designed by Lidija Dragisic