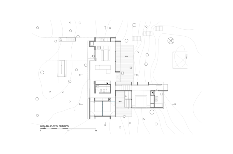
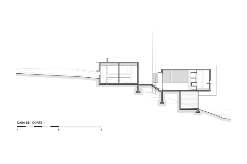
BAK Architects designed this 114,81 sq m house in Mar Azul, Buenos Aires. It is located in a forest on a terrain with differences in level. The uneven area it is built on shapes the outside of the house and gives it an interesting look with cubic shapes coming down the forest hill.
On the exterior, although having concrete walls, the wood surfaces like the terrace and the reflective large windows integrate the house into the landscape with pine trees. The austere look of the house is given by the rough textures of re-used wooden planks (they’re used at shaping the concrete) and concrete walls. There are differently shaped areas positioned in accordance with the terrain, some parts being even buried inside. A hidden ladder connects the two perpendicular prisms creating the house.
This summer house has three bedrooms, but only the master bedroom has its own bathroom, the other two guest bedrooms having only one shared bathroom. More space was kept for the social areas with an integrated kitchen of high importance to the owner. Wood terraces are excellent for admiring the views.
Not only the exterior shape and appearance is unique about this house. On the inside, the design is mostly made out of concrete as an integrated part of the house. Some parts of the furniture are moveable, though, like chairs and beds.
This house offers a practical solution to creating a living space on a difficult to approach terrain.
Photos by Gustavo Sosa Pinilla






























More Similar Articles Like This
Green Gables Home In Fairfield, Connecticut, United States
Loving Luxury at Mardan Palace Resort, Turkey
Dreamy Oceanfront Chateau In West Vancouver, Canada
Pure Perfection: Discover the Top White Paint Colors for a Flawless Décor
Exceptional Coronado Bay Front Estate in California
Tips for Choosing the Right Blue Paint Color for Your Dining Room
Unique Click Clack Hotel In Bogota, Colombia
Opulent Mandarin Oriental Hotel in Paris