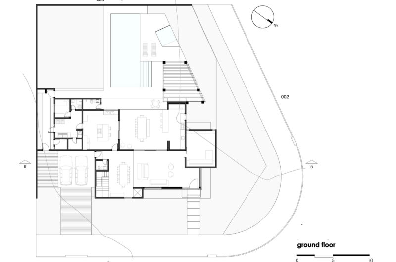
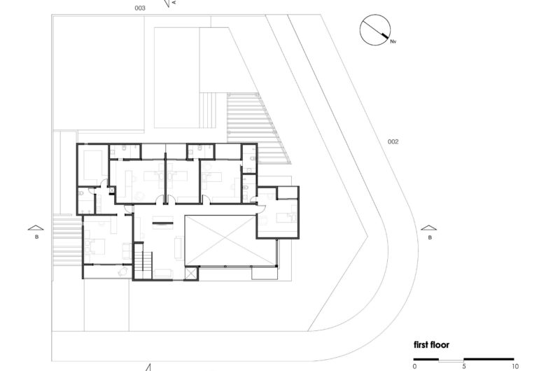
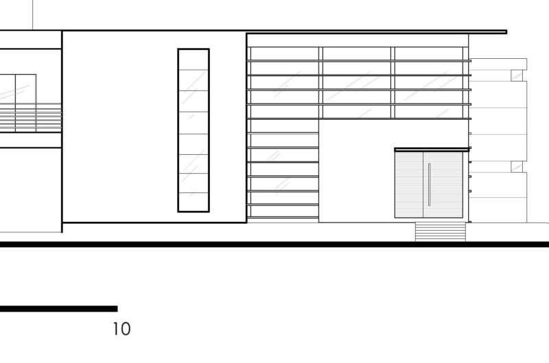
The Atenas 038 House is a gorgeous contemporary home designed by Brazilian studio Dayala + Rafael Arquitetura. It was completed in 2007, and it can be found in capital city of Goiás, Brazil, called Goiânia. With 4,850 square feet of lavishly appointed spaces, this residence is a true dream home.
Photos by: Leandro Moura
















More Similar Articles Like This
Gorgeous And Spacious Home In Sunset Strip
Lovelli Residence: Mediterranean-Style Dwelling in Bali
Spectacular Luxury House in Sarasota, Florida by DSDG Inc. Architects
Different Types Of Foundations For Summer Houses and Garden Buildings
Best paint colors for the living room
Opulent Mandarin Oriental Hotel in Paris
70 Shades of Green: Benjamin Moore’s Vibrant Paint Colors
The Superb Villa Verai on Phuket Island, Thailand