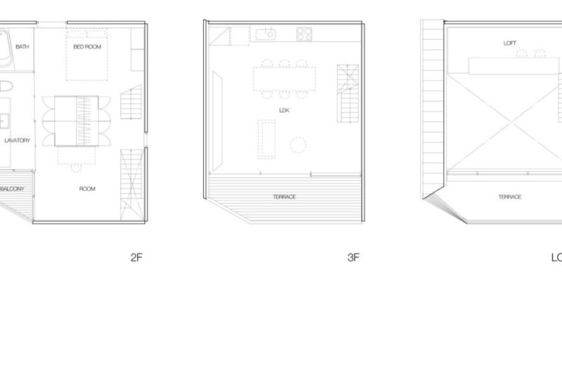
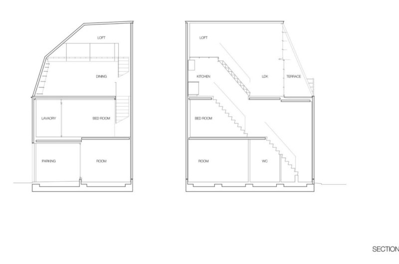
This family house is the work of Keiji Ashizawa and is located in the centre of Tokyo, in a crowded downtown. The house is structured on three floors, with a taller than usual third floor.
It was designed for a small family in search of its members’ privacy, so it has the bedrooms on the first two floors. The third floor is taller that a usual floor, since above the common areas like the living and kitchen a study place is set. The architect had in mind to have maximum sunlight for each room, in accordance to the needs of each space in particular. Therefore, on the upper floor natural light fills the space.
The exterior is made out of steel frames, that don’t take too much space and keep the costs down. However, the support steel handrail would have looked weird on the inside of the house without a special interior design to incorporate it. The designer worked with furnishings and bookshelves that harmonize with the rough steel. Accessories and pieces of furniture for this home are in shades of grey and black to create a distinct and elegant interior.
Photos by Daici Ano
















More Similar Articles Like This
Dreamy Oceanfront Chateau In West Vancouver, Canada
6 Garden and Lawn Tips to Get Ready for Spring
Green Gables Home In Fairfield, Connecticut, United States
Behr’s Brilliant Blues: 70 Shades of Stunning Paint Colors
Loving Luxury at Mardan Palace Resort, Turkey
Amazing Four Seasons Resort Bora Bora
Exploring the New World of Luxury Hoteling
Lawn Care Tips, The Basics For Each SeasonÂ