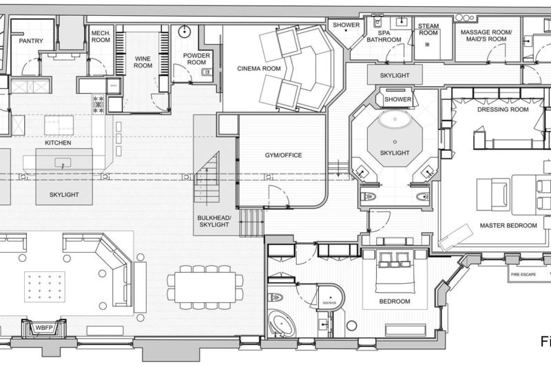
This fabulous penthouse loft can be found in Soho, New York, and it was designed in close collaboration with its owner by Piero Manara & Debla Manara-Berger from Casamanara. This lavish abode ensures 7,500 square feet of living space and comes equipped with high-end technologies and sublime comforts that are able to support a highly extravagant lifestyle.
Accommodations include a lavish master suite boasting a white oak custom-milled walk-in closet as well as silk carpets, while an en-suite bathroom features white Onyx lined double shower as well as a superb Oceanus soaking tub. There are also 3 other bedroom suites packed with high-end amenities, but these are not the only places in the house suited for relaxation. The owner of this stunning apartment is able to enjoy full access to his or her own spa bathroom boasting a 6-person steam room but there is also a state-of-the-art exercise room that is perfect for keeping in shape or burning off calories.
Moreover, the kitchen features a custom built sink as well as Carrara marble counters for a touch of elegance, but the expensive drinks can be stored in the climate controlled wine cellar flaunting its own Sub Zero fridge.
Buy it now!



















More Similar Articles Like This
Exploring the New World of Luxury Hoteling
70 Shades of Green: Benjamin Moore’s Vibrant Paint Colors
Santa Barbara Style Home in Paradise Valley, Phoenix
The Superb Maradiva Villas Resort & Spa in Mauritius
Stunning Sustainable Home in Costa Rica by SPG Architects
Secluded Naladhu Island in Maldives
Heavenly Lily Beach Resort & Spa In Huvahendhoo, Maldives
Benjamin Moore Exterior Paint: Vibrant Shades for a Striking Home