Aupiais House is a contemporary home in Camps Bay, South Africa designed by the Cape Town-based architectural firm Site Interior Design. It features an exquisite interior design with neutral color scheme and wood accents.
This house was a contemporary shell but it needed a “layer” in order to be called a home. The furniture is a combination between local and international furnishing brands and a number of manufactured feature pieces.
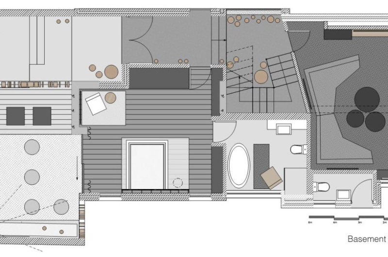
The cavernous basement named by the owners the “Legend Room” was transformed into an ideal entertainer’s retreat.
With just some final touches consisting in the use of the right materials and colors, the final result turned into a bold and livable space.















More Similar Articles Like This
Gorgeous And Spacious Home In Sunset Strip
Santa Barbara Style Home in Paradise Valley, Phoenix
Loving Luxury at Mardan Palace Resort, Turkey
The JKC1 House in Bukit Timah, Singapore
Stunning Banyan Tree Ungasan Bali in Indonesia
Exploring the New World of Luxury Hoteling
Green Gables Home In Fairfield, Connecticut, United States
Lovelli Residence: Mediterranean-Style Dwelling in Bali