This single-family dwelling is called Arc House, and it was designed by Maziar Behrooz Architecture. It was built in East Hampton, New York on a picturesque site and boasts a very interesting arched design that looks strikingly similar to an airplane hangar. This rather unusual layout is particularly impressive because it facilitated the creation of uninterrupted spaces throughout the abode.
The residence features 2 levels that are linked by a beautiful staircase with wooden steps. There are plenty of glass elements throughout, whether we’re talking about the large windows, transparent shower cabin or staircase railing. The floors are made out of high quality wood for the most part and contribute to a feeling of wellness, warmth and comfort.
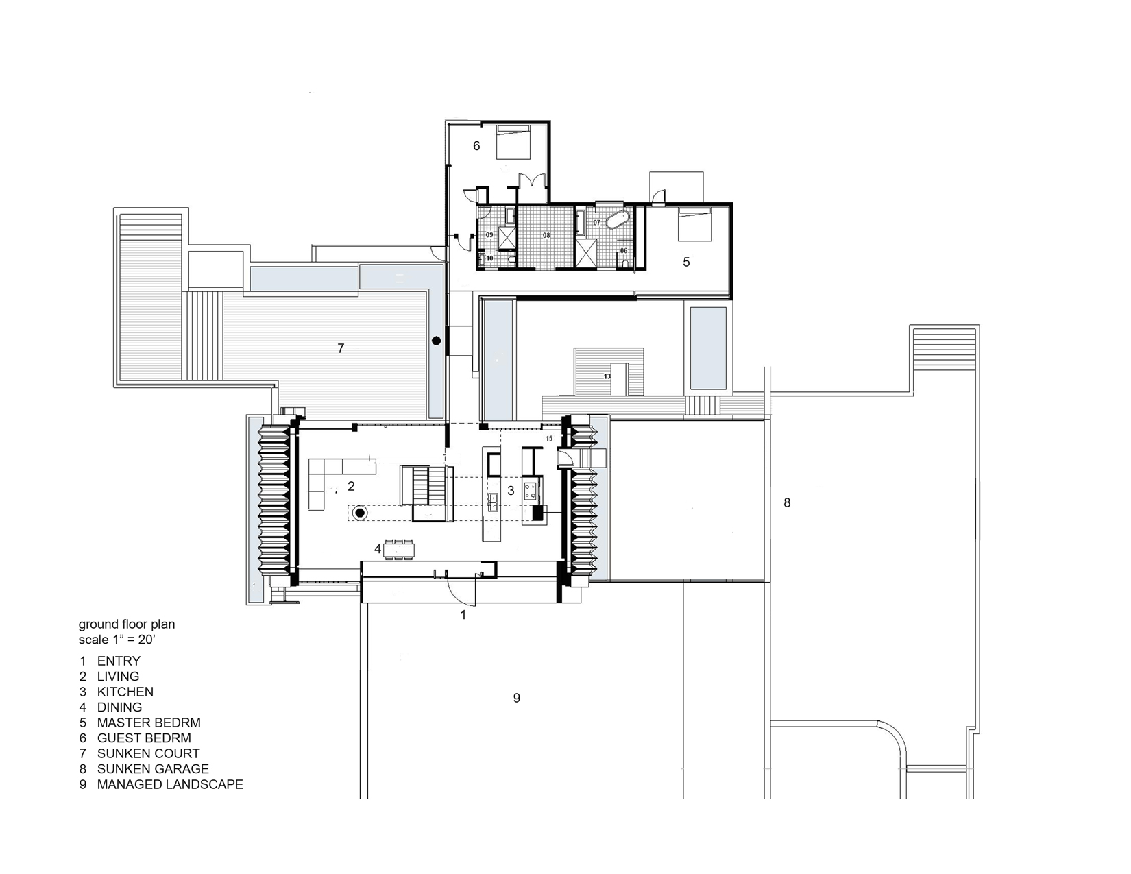
The arch includes the kitchen, dining and living areas, all of which are a part of an open plan. The bedrooms are a part of the flat section of the roof at the rear of the house, which was created using structural insulated panels. The Arc House is self-sufficient to a certain degree thanks to its green roof, geothermal systems and high-efficiency HVAC.
From the architect:
The Arc House is a private residence designed for a couple and their two big dogs.
The site is under a flight path to the local airport and close to a train track. We felt that by using an industrial building technology, an airplane hangar, we would transcend the perceived limitations of such proximities. Further, we were all seduced by the idea of a large column-less self-supporting canopy that enclosed all the public spaces of the house -cost effectively.
The challenge was to find a scale for the arch that would transform this building system into an intimate and enclosed space. At a radius of 39′ with a peak ceiling height of 16′, we felt the building would be small enough to feel comfortable and yet have a sense of largeness associated with its uninterrupted ceiling curve.
The arch contains the living, dining and kitchen areas in an open plan.
The entry canopy to the arch and a few other components within it are at a height of 7′, creating a touchable lower plane within the larger structure. To allow the client flexibility to add future bedrooms, we decided to house them in a flat- roofed section, in the rear, that is made of structural insulated panels (SIPS).
The lower level houses an office, a sitting room, a garage and work out areas; part of the lower level opens to a courtyard that allows cool air circulation and a distinctly private outdoor space.
By splicing the house into the landscape, we were able to transform the flat site into one with multiple horizons and take advantage of natural cooling and passive design.
The energy usage of the house is significantly less than a typical house of this size; due to both the arc shape and materials used.
SIP panels, high-thermal windows, closed-cell foam insulation and a metal roof were chiefly used while the use of conventional lumber was limited to interior framing and the exterior cedar siding only.
Architects: Maziar Behrooz Architecture
Location: East Hampton, NY, United States
Architects: Maziar Behrooz Architecture
Project Year: 2010
Photographs: Matthew Carbone













More Similar Articles Like This
Dreamy Oceanfront Chateau In West Vancouver, Canada
70 Shades of Green: Benjamin Moore’s Vibrant Paint Colors
Vibrant Concrete Floor Paint Colors to Elevate Your Space
Beautiful Apartment in Stockholm for $1 Million
Astonishing El Tovar by the Sea
Opulent Mandarin Oriental Hotel in Paris
Santa Barbara Style Home in Paradise Valley, Phoenix
Extraordinary Constance Halaveli Maldives Resort