At first glance, this house may seem a little bit cold. At a second look it seems colder. Why is that? Because of the dark color palette and of the heavy materials used. The House 20 was designed by Jolson Architecture in order to be lived by a bachelor that doesn’t intend to start a family in the near future.
Located in Melbourne, Australia, this house is a three-storey location accessorized with bold artworks spread all over, from the entry to the dining room.
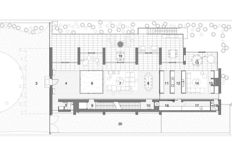
A series of shifting vertical blade columns are fitted in order to define the project, creating also a tension between the indoor and the outdoor space.
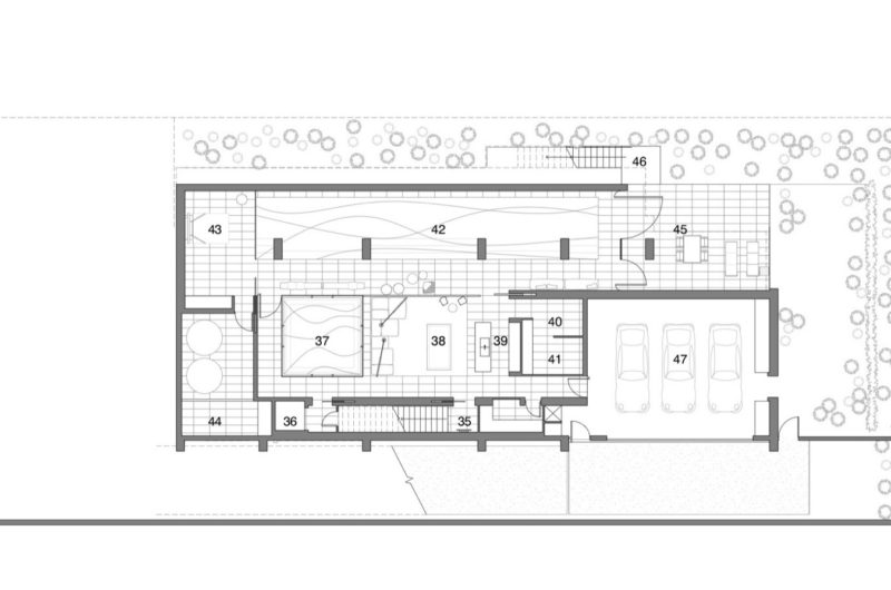
A pond is sited at the basis of the building, cooling the circulating air. Mechanical, electrical and hydraulic systems are all gathered under the same roof achieved with the help of some services engineers.
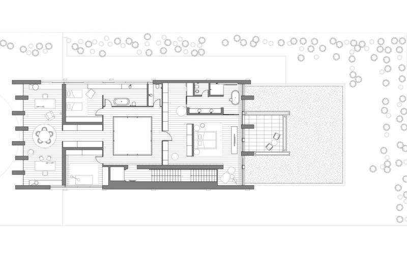
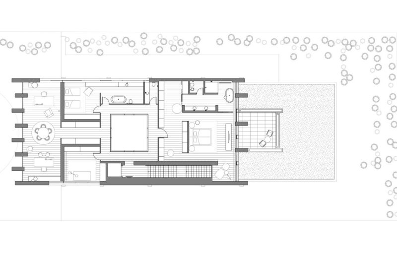
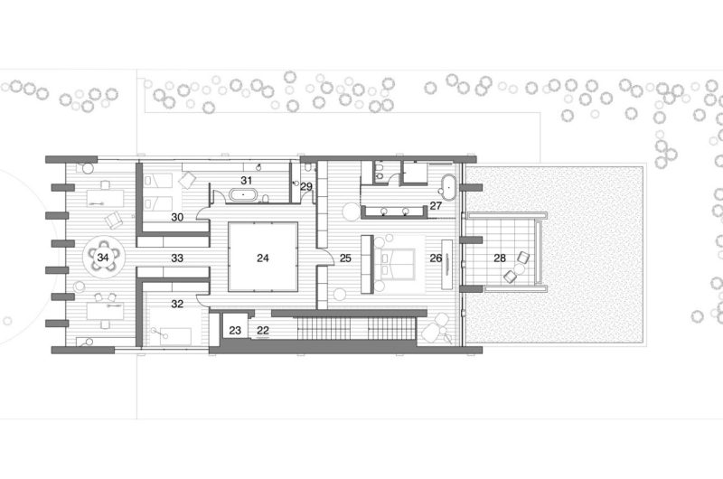
The most tranquil and warm place of the house is the first floor which features a roof terrace, a master suite, a library and a study providing the owner’s need for private space.
The basement is half exposed and half in the ground where dark tones are mixed with bodies of water, creating a visual experience.
We’ve talked a lot about a house matching one’s personality. Well, this one will definitely convince you of the accuracy of the saying!
Photos by Peter Bennetts
































More Similar Articles Like This
Heavenly Lily Beach Resort & Spa In Huvahendhoo, Maldives
Dreamy Oceanfront Chateau In West Vancouver, Canada
Boracay Resort & Spa in the Fascinating Philippines
70 Shades of Green: Benjamin Moore’s Vibrant Paint Colors
Plain Geometric Residence Designed by Lidija Dragisic
Tips for Choosing the Right Blue Paint Color for Your Dining Room
5 Ways to Turn Your Yard Into a Fancy Space
Santa Barbara Style Home in Paradise Valley, Phoenix