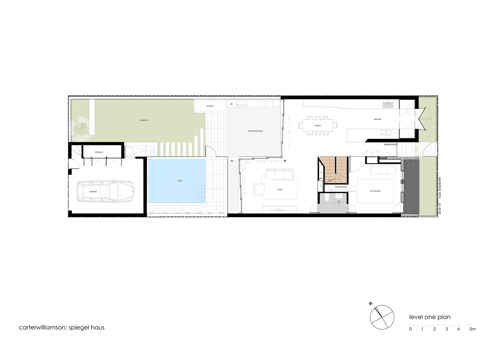
Designed by Carterwilliamson Architects, the Spiegel Haus is located in Sydney, Australia and was constructed for a young family. The architects and the family collaborated extensively for this unique project, and the end result is definitely worthy of praise. The house impresses with a contemporary design and includes a selection of unique features that allow it to stand out among its peers. One of these features comes in the form of a large mirror that brings natural light into a square plan and offers glimpses of the sky and trees.
It also separates the living and dining spaces thus eliminating the need for walls, and on the upper floor, it helps define the main bedroom suite for the children’s rooms. The abode also flaunts a prominent front door that was set into a negative space created by an older single story facade. On top of the garage, there is a studio that boasts a small balcony, which offers clear views of a laneway below. This studio can be used as a study or as a private retreat for one of the family’s teenagers. The various circulation spaces are highlighted by gray ironbark elements, and all of the home’s three levels are linked by a sculptural timber staircase.
From the architect:
The evolution of Spiegel Haus was a somewhat unusual one for a practice that has come to anticipate and appreciate a hands-on approach from our clients. Simon and Astrid were different, once they had done the hard work of selecting an architect and communicating their brief, they were largely prepared to entrust us with the vision for their home.
The design, approval and construction processes were fast moving and liberating, yet we felt the weight of responsibility to deliver a project that would be beautifully crafted and reflective of both the practice and the needs and values of our clients’ young family.
In this project, with our client’s support, there was a freedom to take ideas that the practice had been exploring for many years and to see them resolved. The use of mirrors to bring light into a deep, square plan was something we’d suggested to a number of clients in the past but perhaps because of our own lingering uncertainty, they’d never been installed. At the Spiegel Haus the namesake mirrors line the slot void and bring light into the heart of the plan as we’d always hoped, providing happen-chance views of the trees and sky beyond and casting diaphanous trails of light along the walls and onto the polished concrete floors.
The mirror-lined void above spatially divides the living and dining spaces without the need for walls. On the upper floor it cleaves the main bedroom suite from the children’s bedrooms.
Set amongst an eclectic mix of apartments, warehouses, single storey-residences and a garage-lined rear lane, it felt important to give the home a strong street address. To Lawrence St the front door is given prominence by setting it into the negative space created by the old, single storey façade and the new tall element which rises to mimic the heights of surrounding developments. To the lane, a studio set atop the garage holds the corner of the site, with a pocket balcony deliberately surveilling the laneway below.
The studio doubles as study, future teenage retreat and home-away-from-home for a string of international visitors, accommodating overlapping programs to minimise material and spatial wastage. The spatial rigor and basement buried below the watertable left room for a generous yard and an outdoor room that makes the most of Sydney’s temperate climate.
With frequent guests and a house that operates across three levels, grey-ironbark was used to line and demarcate the circulation spaces. The sculptural timber stair sits at the heart of the home, bleeding out at each floor to define the path of movement.
Simon and Astrid’s trust and vision has commissioned a home that responds to the constraints of inner-city living and the complexities of family life. Through careful spatial planning and thoughtful materiality they have been able to maximise space, light, longevity and joy.
Architects: Carterwilliamson Architects
Location: Inner West, Sydney NSW, Australia











More Similar Articles Like This
Marvelous Anantara Dhigu Resort
Gorgeous And Spacious Home In Sunset Strip
Boracay Resort & Spa in the Fascinating Philippines
Different Types Of Foundations For Summer Houses and Garden Buildings
Exquisite Crossacres Mansion In Surrey, England
The Superb Maradiva Villas Resort & Spa in Mauritius
Pure Perfection: Discover the Top White Paint Colors for a Flawless Décor
5 Ways to Turn Your Yard Into a Fancy Space