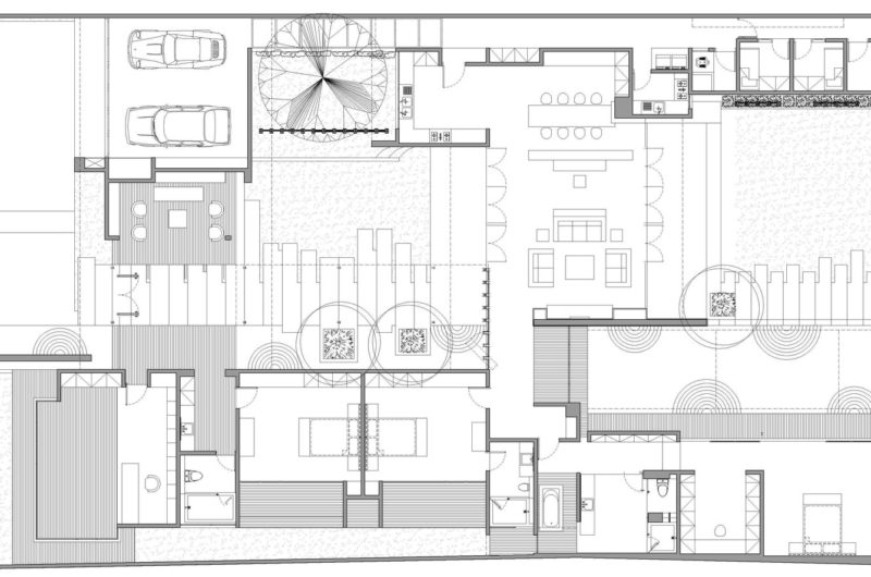
The Diminished House is a home with rich colors and wide open spaces, designed by Wahana Cipta Selaras. It is located in South Jakarta, Indonesia and is one of the wonders in the area. It was custom made for a demanding customer that wanted to create a modern and cozy environment for his family.
The size of the house was changed from 900 square meters to 550 square meters while the old structure of the home was preserved and refurbished and the interior was redesigned. Local natural materials were used in rearranging the house such as andesit stone, bengkirai wood and teak waste.
Photos by Fernando Gomulya



















More Similar Articles Like This
Best paint colors for the living room
Amazing Four Seasons Resort Bora Bora
Saguaro Palm Springs by Joie de Vivre
6 Garden and Lawn Tips to Get Ready for Spring
The Superb Villa Verai on Phuket Island, Thailand
Astonishing El Tovar by the Sea
Heavenly Lily Beach Resort & Spa In Huvahendhoo, Maldives
Plain Geometric Residence Designed by Lidija Dragisic