The New Old residence is a project of the architect Jessica Liew, located in Inner city Melbourne, Victoria. It offers a simple, cozy and relaxed atmosphere with bright but private living spaces.
The purpose when building this house was to create an honest, energy efficient and practical home imbued with character provided by the natural materials used, and the result that we see is remarkable.
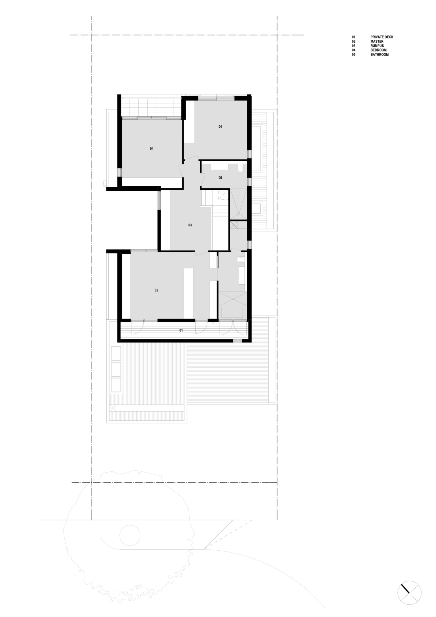
It accommodates a double-storey dwelling with a formal living, library, cellar, study, laundry, three bedrooms, three bathrooms and a three car garage.
Among other amenities, it includes double glazed windows and skylights, double hung ceilings, double insulated stud walls, underground water tank, hydronic slab heating and regenerative hardwood timbers all over the house.
All rooms are provided with views of the garden, fishpond framed by antique Chinese screen doors and courtyard.
Photos by Jaime Diaz-Berrio














More Similar Articles Like This
Outstanding Bodrum Houses in Yalikavak, Turkey
Tips for Choosing the Right Blue Paint Color for Your Dining Room
Unique Click Clack Hotel In Bogota, Colombia
Beach House CN – A Superb Contemporary Home in Peru
Secluded Naladhu Island in Maldives
Dreamy Oceanfront Chateau In West Vancouver, Canada
Boracay Resort & Spa in the Fascinating Philippines
Gayton Road Residence by Paxton Locher Studio