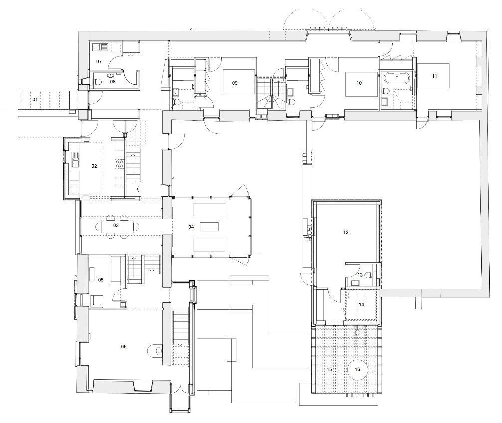
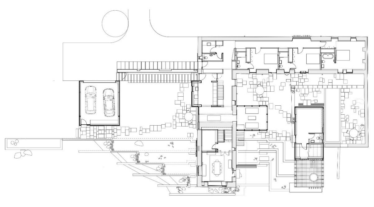
The Bogbain Mill is a contemporary home located in Dingwall, Scotland that was designed by Rural Design and kept the old walls of a former mill. All the internal rooms located on the ground floor maintain a direct relationship with the internal courtyard which is the main focus of the house.
Maybe because it incorporates the ruins of a former mill, this new project has that special something.
Photos by Andrew Lee













More Similar Articles Like This
Superb Luxury Penthouse in Portomaso, Malta
Amazing Four Seasons Resort Bora Bora
Dreamy Oceanfront Chateau In West Vancouver, Canada
Best paint colors for the living room
5 Ways to Turn Your Yard Into a Fancy Space
Plain Geometric Residence Designed by Lidija Dragisic
Lovelli Residence: Mediterranean-Style Dwelling in Bali
Unique Click Clack Hotel In Bogota, Colombia