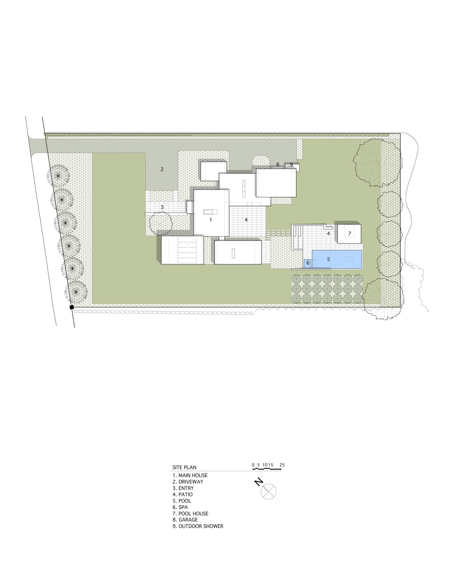
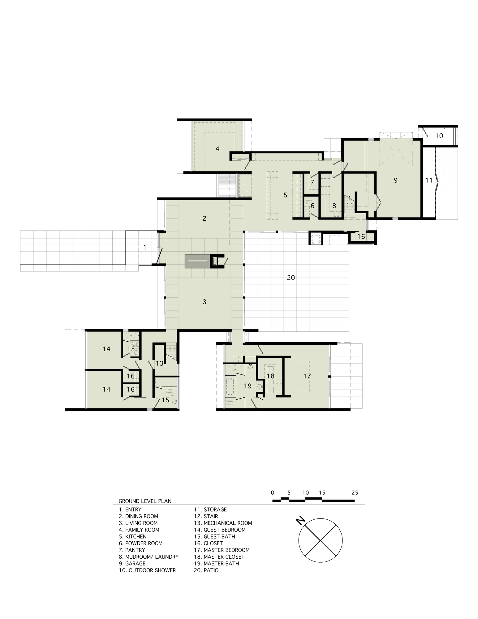
Sam’s Creek is a house that provides both intimacy and the necessary opening to the outdoor place. It was designed by Bates Masi Architects according to the owner’s wishes of creating a multifunctional home. For example if a dinner party takes place, the rest of the family is not disturbed at all. Its transparency provides a setting where guests can see and be seen.
Multiple open-ended boxes which have independent audio, video and climate control are adjusted to encase the architectural program. Between these boxes, gardens and patios are arranged; each one of them occupies a certain program in order for different events to take place.
If you have a busy life and you can’t seem to put some order in it, then this kind of house would be perfect for you because no matter what you want to do, you can do it without attempting to the tranquility and the privacy of the rest of the family, all due to the separation of program into individual volumes.


















More Similar Articles Like This
Exploring the New World of Luxury Hoteling
The Superb Villa Verai on Phuket Island, Thailand
Beautiful Apartment in Stockholm for $1 Million
Lovelli Residence: Mediterranean-Style Dwelling in Bali
Benjamin Moore Exterior Paint: Vibrant Shades for a Striking Home
Green Gables Home In Fairfield, Connecticut, United States
Boracay Resort & Spa in the Fascinating Philippines
Wonderful Yachting Club Villas at Elounda Beach by Davide Macullo Architects