Spacious, luxurious and beautifully designed, Mothersill is a private home that can be found in Water Mill, New York, USA. It was sketched out by a firm named Bates Masi Architects in 2013, and it offers sublime living conditions for its owners and their guests. The interior arrangements feature a stunning mix of modern and rustic elements. High-end amenities, contemporary facilities and reliable appliances are complemented by wooden ceilings, floors and cabinets that give off an atmosphere of warmth and comfort.
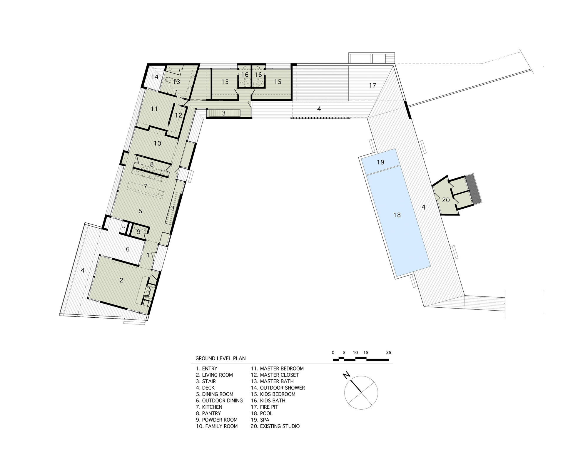
With 6,027 square feet of living space, Mothersill includes a master bedroom, a children’s bedroom, a dining room, a family room, a fully equipped a kitchen, a pantry and a master bathroom, all of which are found on the first floor. The basement is where the guest bedroom and bathroom are located, but this is also where we find the storage areas, the wine room, the gymnasium, a mudroom, a garage and accommodations for the maid.
Aside from the main residence, the property also flaunt a generous selection of plants such as serpentine Yew and Siberian Iris.
From the architect:
Elevated, wooden boardwalks extending into the beachscape are a common occurrence in the dunes of Eastern Long Island. Hovering slightly over the ground, this simple device is a pathway to the beach that carefully negotiates a constantly changing terrain. Their simple construction challenges the extreme natural elements found at the intersection of land and sea.
In beachfront construction, the boardwalk provides a unifying accessibility that connects disparate elements of building and landscape; it is an extension of building that is knit within the landscape. This design for a vacation home in Water Mill, New York, utilizes a boardwalk as an architectural device for weaving together multiple portions of a historic site with new building and landscape elements.
Located on a creek-front property, the site contains two culturally significant structures designed by architect Andrew Geller and a diversity of landscape plantings. The two Geller structures, a small house and studio, were built in 1962. Common to Geller’s architecture, a boardwalk extends from the two structures to provide a connection between the two. A varied collection of botanically significant plantings populates the property, including a rare specimen Yew garden, serpentine Yew, and more than 400,000 Siberian Iris.
The western edge of the property slopes downward to a low-lying wetland bordering the creek. A conservation easement on the property protects the two Geller structures, Yew garden and iris, while allowing for the addition of a new main house. The owners of the property requested a design that seamlessly incorporated the protected Geller structures, Yew garden, and new residence. To achieve this objective, a constructed path traverses the site to link visual and spatial relationships between these elements. The path takes the form of a raised, wooden surface that recalls the boardwalks of Geller’s architecture.
Similar to the way the boardwalks in nearby dunes engage an undulating landscape, this low, horizontal path engages distinct site features with the historic Geller structures and new house. Building and wetland setbacks, existing landscape features, site access, and conservation easement restrictions overlap to create the parameters of a meandering path across the site. The path originates from the relocated Geller House in the Yew garden and winds around the serpentine hedge to a new swimming pool. Like the historic arrangement of the Geller House and Studio, the new boardwalk physically connects the two historic structures. As the path continues it passes the Geller Studio, now reprogrammed as a pool house, and connects to shaded outdoor living spaces.
A new central lawn is defined as the boardwalk wraps to extend through the main house. A cantilevered deck wraps the end of the main house at the termination of the path, providing views of the sloping wetland and creek. The surface of the path folds up and over to become the enclosure of the main house, simultaneously functioning as floor, wall, and roof. All surfaces of this enclosure are constructed with the same wood decking as the boardwalk. Their uniformity gives the effect of a single envelope containing a variety of parts and reflects the influence of design in Geller’s work. In these ways the physical, material, and spatial qualities of the path facilitate an architectural dialogue between the Geller structures and new house that is interwoven with the existing landscape, collecting the once individual elements into a unified whole.















More Similar Articles Like This
Superb Luxury Penthouse in Portomaso, Malta
Green Gables Home In Fairfield, Connecticut, United States
These Top Tips Will Help You to Turn Your Garden into the Ultimate Glamping Site!
Wonderful Yachting Club Villas at Elounda Beach by Davide Macullo Architects
Opulent Mandarin Oriental Hotel in Paris
Astonishing El Tovar by the Sea
Pure Perfection: Discover the Top White Paint Colors for a Flawless Décor
Behr’s Brilliant Blues: 70 Shades of Stunning Paint Colors